LOADING

50 Creekside Way Sw Calgary, Alberta T2X 6E2

$468,825

MLS® Number: A2300544 Bedrooms: 4 Bathrooms: 4 Square Footage: 1313 sqft Community: Pine Creek
×
×
×

Need to sell your current home to buy this one?

Find out how much it will sell for today!

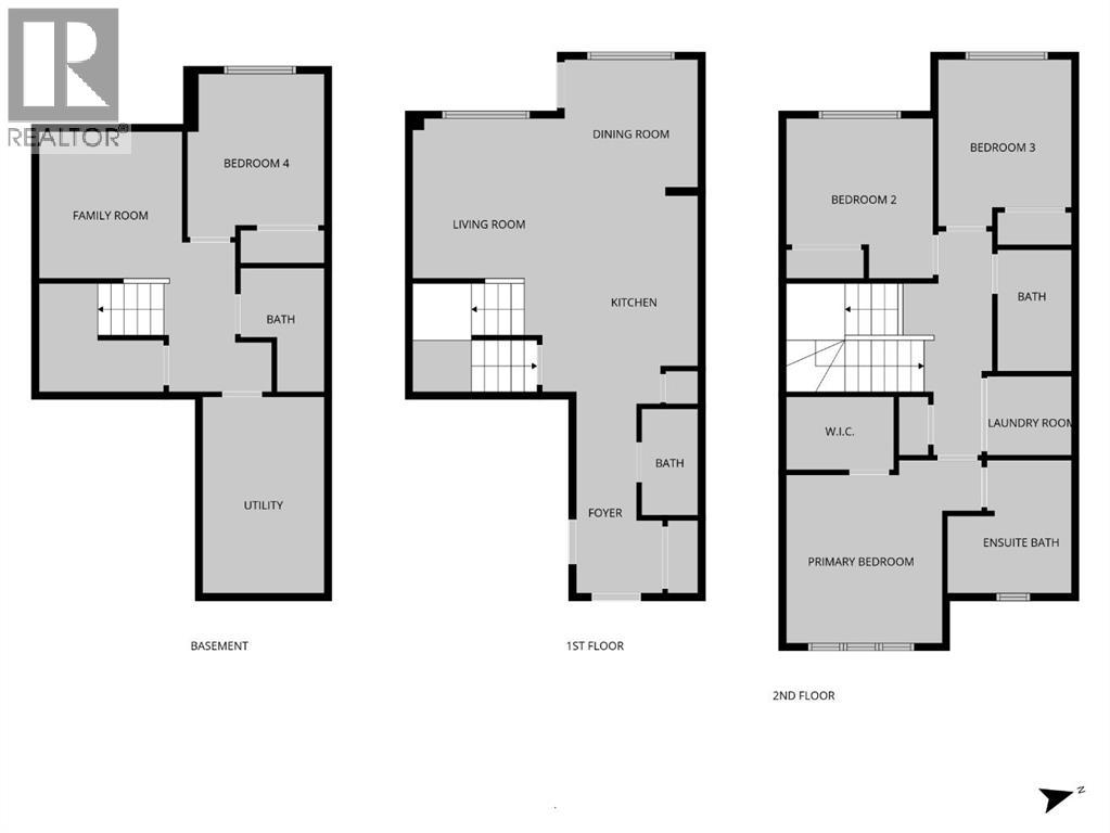
OPEN HOUSE on Saturday AND Sunday from 12-5pm. Please go to the Show Home located at 96 Creekside Drive SW for access.Welcome to this brand-new fully finished townhome by StreetSide Developments in the thoughtfully designed community of Sirocco in south Calgary. Surrounded by parks, pathways, and a scenic central pond, Sirocco offers a peaceful neighborhood atmosphere where outdoor living and quiet moments are part of everyday life. With nearby amenities, shopping, and convenient access to major routes, residents enjoy the perfect balance of natural surroundings and city connectivity. Proximity to Sirocco Golf Club further enhances the open, green feel of this growing community.This fully finished two-storey townhome offers exceptional flexibility with four bedrooms and four bathrooms across three levels of developed living space. The main floor features a bright open-concept layout connecting the kitchen, dining area, and living room, creating a comfortable space for both everyday living and entertaining. The kitchen is beautifully finished with modern slab-style cabinetry featuring 42” upper cabinets, a full bank of drawers, soft-close doors, polished white quartz countertops, tile backsplash, stainless steel Whirlpool appliances, and a polished chrome Moen high-arc faucet with pull-down sprayer. Luxury vinyl plank flooring runs throughout the main living areas, bathrooms, and laundry room, while contemporary lighting selected by professional designers completes the modern interior.Upstairs, you’ll find three bedrooms including a spacious primary suite with a private full ensuite. An additional full bathroom and the convenience of upper-floor laundry enhance the functionality of the upper level.The fully finished lower level expands the home’s versatility with a fourth bedroom, full bathroom, and family room — ideal for guests, teenagers, a home office, or additional living space.Additional features include a single attached garage with opener, driveway and an additional titled parking stall,, high-efficiency gas furnace, digital thermostat, 50-gallon electric hot water tank, energy-efficient dual-pane windows with low-E coating, sound attenuation system for increased privacy between units, and a natural gas BBQ line on the patio or balcony. Durable exterior cladding with vinyl siding and fibre cement panels, along with lifetime limited warranty roof shingles, ensures long-term performance and curb appeal.Offering modern construction, thoughtful design, and a location centered around green space and lifestyle, this home represents an outstanding opportunity to own a brand-new property in one of Calgary’s emerging south communities. (id:37074)

Property Features

Cooling: None Heating: Forced Air Landscape: Landscaped

Open House

This property has open houses!

April
25
Saturday
Starts at:

12:00 pm

Ends at:

5:00 pm

April
26
Sunday
Starts at:

12:00 pm

Ends at:

5:00 pm

Property Details

MLS® Number A2300544
Property Type Single Family
Neigbourhood Pine Creek
Community Name Pine Creek
Amenities Near By Park, Playground, Schools, Shopping
Community Features Pets Allowed With Restrictions
Features Other, No Animal Home, No Smoking Home
Parking Space Total 3
Plan 2510125
Structure Deck

Parking

Attached Garage 1

Building

Bathroom Total 4
Bedrooms Above Ground 3
Bedrooms Below Ground 1
Bedrooms Total 4
Amenities Other
Appliances Washer, Refrigerator, Dishwasher, Stove, Dryer, Microwave Range Hood Combo, Garage Door Opener
Basement Development Finished
Basement Type Full (finished)
Constructed Date 2026
Construction Material Wood Frame
Construction Style Attachment Attached
Cooling Type None
Exterior Finish Vinyl Siding
Flooring Type Carpeted, Vinyl Plank
Foundation Type Poured Concrete
Half Bath Total 1
Heating Fuel Natural Gas
Heating Type Forced Air
Stories Total 2
Size Interior 1,313 Ft2
Total Finished Area 1312.66 Sqft
Type Row / Townhouse

Rooms

Level Type Dimensions
Lower Level Recreational, Games Room 9.75 Ft x 9.58 Ft
Lower Level Bedroom 10.17 Ft x 8.50 Ft
Lower Level 3pc Bathroom 8.33 Ft x 5.33 Ft
Main Level Living Room 11.08 Ft x 10.50 Ft
Main Level Kitchen 14.00 Ft x 8.00 Ft
Main Level Dining Room 9.08 Ft x 9.00 Ft
Main Level Foyer 5.67 Ft x 4.83 Ft
Main Level 2pc Bathroom 6.83 Ft x 3.33 Ft
Upper Level Primary Bedroom 11.33 Ft x 10.67 Ft
Upper Level Other 7.33 Ft x 4.92 Ft
Upper Level 4pc Bathroom 8.67 Ft x 8.08 Ft
Upper Level Bedroom 9.67 Ft x 8.50 Ft
Upper Level Bedroom 9.92 Ft x 9.08 Ft
Upper Level Laundry Room 5.50 Ft x 5.00 Ft
Upper Level 4pc Bathroom 8.42 Ft x 4.92 Ft

Land

Acreage No
Fence Type Not Fenced
Land Amenities Park, Playground, Schools, Shopping
Landscape Features Landscaped
Size Depth 22.45 M
Size Frontage 6.1 M
Size Irregular 137.19
Size Total 137.19 M2|0-4,050 Sqft
Size Total Text 137.19 M2|0-4,050 Sqft
Zoning Description M-cg

When you contact Maverick Group, the best realtors in Airdrie, you will know that you are working with an agent and team who focuses on you and your needs. We will be with you every step of the way. From buying and selling to rental properties and relocation, we deliver results in the Airdrie real estate market and are ready to assist you with all of your real estate needs.

Airdrie Realtors

Real Estate Data supplied by CREA®’s MLS® System. CREA® is the owner of the copyright in its MLS® System. Data deemed reliable but not guaranteed accurate by CREA®. The trademarks MLS®, Multiple Listing Service® and the associated logos are owned by The Canadian Real Estate Association (CREA) and identify the quality of services provided by real estate professionals who are members of CREA. The trademarks REALTOR®, REALTORS®, and the REALTOR® logo are controlled by The Canadian Real Estate Association (CREA) and identify real estate professionals who are members of CREA. Used under license.

Book Your Consultation

Book Your Consultation

Book Your Consultation

Book Your Consultation

Book Your Consultation

Book Your Consultation