LOADING

167 Corner Glen Crescent Ne Calgary, Alberta T3N 2L8

$799,000

MLS® Number: A2272289 Bedrooms: 5 Bathrooms: 4 Square Footage: 2314 sqft Community: Cornerstone
×
×
×

Need to sell your current home to buy this one?

Find out how much it will sell for today!

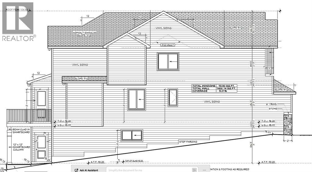
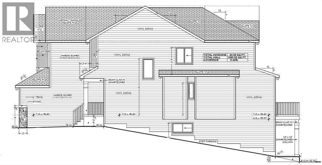
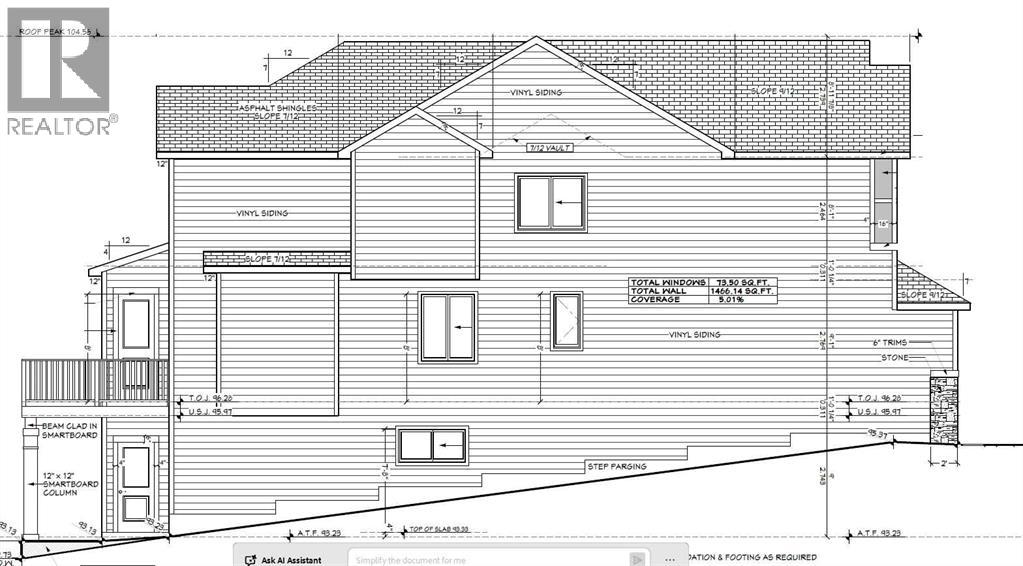
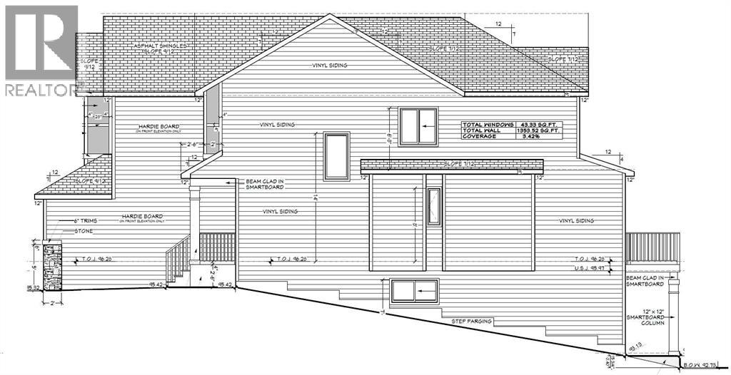
READY IN APRIL 2026 / BRAND NEW / WALK-OUT BASEMENT / LOT BACKING ONTO WETLANDS / SPICE KITCHEN / MAIN FLOOR BEDROOM + FULL BATH / TOTAL 5 BED + 4 FULL BATH / DUAL MASTER BEDROOM / NEW HOME GST REBATE (Eligibility restrictions apply). Amazing Design! Unique in Features! Brand New Home! Over 2300+ SQFT of stylish design welcomes you into this stunning FIVE BEDROOM and FOUR FULL BATH home located in the beautiful community of Cornerstone. You're welcomed to a thoughtfully designed living space that maximizes every inch while offering an abundance of space for your whole family to enjoy! The gorgeous OPEN FLOOR PLAN with 9 feet ceiling, invites you in to discover a lovely kitchen that boasts beautiful QUARTZ counter tops, sleek stainless steel appliance package with an upgraded cooktop, French Door Fridge with Internal Water + Ice, Built in Wall Oven/Microwave Combo and a power pack built-in cabinet hoodfan. A large walk-in SPICE KITCHEN and beautiful extended over-sized flush centre Island that overlooks the generous great room and dining room-Ideal for all entertaining. The main floor has a beautiful view of the NATURAL WETLANDS from windows on back. A sizeable 5TH BEDROOM on the main floor, perfect for a large family or working from home, along with full bath adjacent to this functional space. A mudroom with storage gives a convenient space for the family to access to and from garage. Upstairs, you will discover FOUR MORE BEDROOMS with TWO MASTER Bedroom's, with the main one boasting a VAULTED CEILING, a 5pc en-suite with dual vanities, stand alone shower, over sized bath, window overlooking natural wetlands and large walk-in closet. A centralized BONUS ROOM with VAULTED CEILING offers an additional living space and another 3-pc full bath and LAUNDRY WITH SINK and storage complete this level. ADDITIONAL FEATURES: Upgraded Fit and Finish , ALL BATHROOMS having standing showers, Lot backing onto expansive wetlands, a 12 x 11 feet deck with open views of wetlands, ir on spindle railing added to stairs, and raised 9' basement ceiling height and 3-piece rough-in plumbing along with patio door on the back. Situated close to the International Airport with quick access to both Deer Foot Trail and Stony Trail along with new amenities being added to the community continuously, you will enjoy all Cornerstone has to offer. A brand new build with all of the difficult decisions decided along with a functional and intelligent floorplan for a large family. (id:37074)

Property Features

Fireplace: Fireplace Cooling: None Heating: Forced Air

Property Details

MLS® Number A2272289
Property Type Single Family
Neigbourhood Northeast Calgary
Community Name Cornerstone
Amenities Near By Park, Playground, Schools, Shopping
Features Other, Pvc Window, No Neighbours Behind, Environmental Reserve
Parking Space Total 4
Plan 2311614
Structure Deck

Parking

Attached Garage 2

Building

Bathroom Total 4
Bedrooms Above Ground 5
Bedrooms Total 5
Amenities Other
Appliances Refrigerator, Cooktop - Gas, Dishwasher, Microwave, Oven - Built-in, Humidifier, Garage Door Opener, Washer & Dryer, Cooktop - Induction
Basement Development Unfinished
Basement Features Walk Out
Basement Type Full (unfinished)
Constructed Date 2026
Construction Material Poured Concrete, Wood Frame
Construction Style Attachment Detached
Cooling Type None
Exterior Finish Concrete, Vinyl Siding
Fireplace Present Yes
Fireplace Total 1
Flooring Type Carpeted, Vinyl Plank
Foundation Type Poured Concrete
Heating Fuel Natural Gas
Heating Type Forced Air
Stories Total 2
Size Interior 2,314 Ft2
Total Finished Area 2314 Sqft
Type House

Rooms

Level Type Dimensions
Main Level Kitchen 11.75 Ft x 9.13 Ft
Main Level Dining Room 13.08 Ft x 11.50 Ft
Main Level Other 11.75 Ft x 5.58 Ft
Main Level Great Room 14.42 Ft x 15.00 Ft
Main Level Foyer 6.00 Ft x 7.33 Ft
Main Level Other 6.00 Ft x 5.00 Ft
Main Level Other 5.00 Ft x 7.08 Ft
Main Level Bedroom 10.08 Ft x 9.50 Ft
Main Level 3pc Bathroom 8.50 Ft x 5.00 Ft
Upper Level Bonus Room 14.92 Ft x 11.00 Ft
Upper Level Laundry Room 5.00 Ft x 8.00 Ft
Upper Level Other 5.58 Ft x 8.58 Ft
Upper Level Other 4.58 Ft x 7.33 Ft
Upper Level Bedroom 14.25 Ft x 11.00 Ft
Upper Level Bedroom 10.58 Ft x 10.08 Ft
Upper Level Bedroom 11.00 Ft x 10.08 Ft
Upper Level Primary Bedroom 13.83 Ft x 13.25 Ft
Upper Level 3pc Bathroom 5.00 Ft x 8.17 Ft
Upper Level 3pc Bathroom 5.00 Ft x 8.58 Ft
Upper Level 5pc Bathroom 11.00 Ft x 9.25 Ft

Land

Acreage No
Fence Type Partially Fenced
Land Amenities Park, Playground, Schools, Shopping
Size Depth 32.13 M
Size Frontage 10.37 M
Size Irregular 329.00
Size Total 329 M2|0-4,050 Sqft
Size Total Text 329 M2|0-4,050 Sqft
Zoning Description R-g

When you contact Maverick Group, the best realtors in Airdrie, you will know that you are working with an agent and team who focuses on you and your needs. We will be with you every step of the way. From buying and selling to rental properties and relocation, we deliver results in the Airdrie real estate market and are ready to assist you with all of your real estate needs.

Airdrie Realtors

Real Estate Data supplied by CREA®’s MLS® System. CREA® is the owner of the copyright in its MLS® System. Data deemed reliable but not guaranteed accurate by CREA®. The trademarks MLS®, Multiple Listing Service® and the associated logos are owned by The Canadian Real Estate Association (CREA) and identify the quality of services provided by real estate professionals who are members of CREA. The trademarks REALTOR®, REALTORS®, and the REALTOR® logo are controlled by The Canadian Real Estate Association (CREA) and identify real estate professionals who are members of CREA. Used under license.

Book Your Consultation

Book Your Consultation

Book Your Consultation

Book Your Consultation

Book Your Consultation

Book Your Consultation