LOADING

1185 Iron Ridge Avenue Crossfield, Alberta T0M 0S0

$646,000

Need to sell your current home to buy this one?

Find out how much it will sell for today!

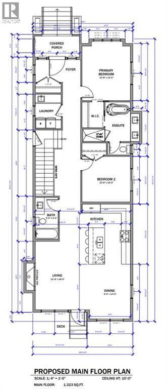
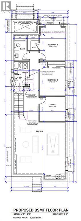
Take a look at this custom-built home in the family-friendly community of Crossfield. This brand-new bungalow offers a total of 2,353 square feet of well-designed living space, with 1,323 square feet on the main floor and 1,030 square feet in the finished basement.Inside, you’ll find 10 foot ceilings on the main level and 9 foot ceilings in the basement, giving the home a bright and open feel. The main floor features a covered front porch, a large deck in the backyard, and an open concept layout that’s perfect for both relaxing and entertaining.The kitchen comes fully loaded with a big island, quartz countertops, premium stainless steel appliances, black hardware, high end lighting, and solid plywood shaker cabinets. The living room has a modern Montigo gas fireplace, and the space is finished with durable luxury vinyl plank flooring, Maple wood touches, and black dual pane windows that give it a modern look.The exterior includes a mix of stucco and stone finishes, all part of the included upgrades.The primary bedroom is a great place to unwind. It comes with a five piece ensuite and a walk in closet. There’s also a second bedroom on the main floor, plus a full four piece bathroom and a laundry room with a sink.Head downstairs and you’ll find even more space including a third bedroom with a walk in closet, a home office, a large rec room with a built in media center and shelving, a wet bar, and a fourth bedroom. There’s also a separate side entrance, perfect for privacy or future rental potential.Outside, there’s a double detached garage, a fully landscaped yard, and plenty of room to enjoy the outdoors.This home is located in the growing Iron Landing area, close to parks, playgrounds, shopping, and schools like Crossfield Elementary and W G Murdoch School. You’re also just a short drive from Airdrie (under 10 minutes), 25 minutes to Calgary, and close to Highway 2 for an easy commute.The home still have the chance to choose some of the finishes to make it your own. Photos shown are from a previous build. Visit our show home to get a feel for the quality and style.Reach out today to learn more or to book a visit. (id:37074)

Property Features

Style: Bungalow Fireplace: Fireplace Cooling: None Heating: Other, Forced Air Landscape: Landscaped

Property Details

MLS® Number A2276911
Property Type Single Family
Amenities Near By Golf Course, Park, Playground, Recreation Nearby, Schools, Shopping
Community Features Golf Course Development
Features Back Lane, Pvc Window, No Animal Home, No Smoking Home, Gas Bbq Hookup, Visitable
Parking Space Total 2
Plan 2410344
Structure Deck, Porch

Parking

Detached Garage 2

Building

Bathroom Total 3
Bedrooms Above Ground 2
Bedrooms Below Ground 2
Bedrooms Total 4
Appliances Washer, Refrigerator, Range - Gas, Dishwasher, Dryer, Microwave, Hood Fan
Architectural Style Bungalow
Basement Development Unfinished
Basement Features Separate Entrance
Basement Type Full (unfinished)
Constructed Date 2025
Construction Material Poured Concrete, Wood Frame
Construction Style Attachment Detached
Cooling Type None
Exterior Finish Concrete, Vinyl Siding
Fireplace Present Yes
Fireplace Total 1
Flooring Type Tile, Vinyl Plank
Foundation Type Poured Concrete
Heating Fuel Natural Gas
Heating Type Other, Forced Air
Stories Total 1
Size Interior 1,323 Ft2
Total Finished Area 1323 Sqft
Type House

Rooms

Level Type Dimensions
Basement Office 10.08 Ft x 9.75 Ft
Basement Bedroom 10.08 Ft x 12.00 Ft
Basement Bedroom 10.08 Ft x 11.00 Ft
Basement 4pc Bathroom 11.00 Ft x 5.00 Ft
Main Level Dining Room 9.00 Ft x 13.00 Ft
Main Level Living Room 11.75 Ft x 16.00 Ft
Main Level 4pc Bathroom 5.00 Ft x 9.17 Ft
Main Level Primary Bedroom 10.67 Ft x 12.00 Ft
Main Level Bedroom 10.67 Ft x 10.00 Ft
Main Level 5pc Bathroom 13.00 Ft x 5.42 Ft

Land

Acreage No
Fence Type Partially Fenced
Land Amenities Golf Course, Park, Playground, Recreation Nearby, Schools, Shopping
Landscape Features Landscaped
Size Depth 35.05 M
Size Frontage 9.14 M
Size Irregular 3444.00
Size Total 3444 Sqft|0-4,050 Sqft
Size Total Text 3444 Sqft|0-4,050 Sqft
Zoning Description R-1c

When you contact Maverick Group, the best realtors in Airdrie, you will know that you are working with an agent and team who focuses on you and your needs. We will be with you every step of the way. From buying and selling to rental properties and relocation, we deliver results in the Airdrie real estate market and are ready to assist you with all of your real estate needs.

Airdrie Realtors

Real Estate Data supplied by CREA®’s MLS® System. CREA® is the owner of the copyright in its MLS® System. Data deemed reliable but not guaranteed accurate by CREA®. The trademarks MLS®, Multiple Listing Service® and the associated logos are owned by The Canadian Real Estate Association (CREA) and identify the quality of services provided by real estate professionals who are members of CREA. The trademarks REALTOR®, REALTORS®, and the REALTOR® logo are controlled by The Canadian Real Estate Association (CREA) and identify real estate professionals who are members of CREA. Used under license.

Book Your Consultation

Book Your Consultation

Book Your Consultation

Book Your Consultation

Book Your Consultation

Book Your Consultation