LOADING

409 Corner Glen Way Ne Calgary, Alberta T3N 2P1

$729,900

MLS® Number: A2253055 Bedrooms: 3 Bathrooms: 3 Square Footage: 2267 sqft Community: Cornerstone
×
×
×

Need to sell your current home to buy this one?

Find out how much it will sell for today!

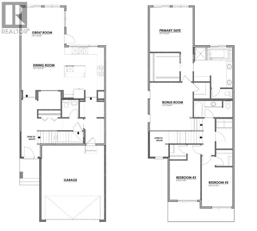
OPEN HOUSE ALERT SAT & SUN 2-4 PM ** BRAND NEW HOME ** Great news for eligible First-Time Home Buyers – NO GST payable on this home! The Government of Canada is offering GST relief to help you get into your first home. Save $$$$$ in tax savings on your new home purchase. Eligibility restrictions apply. For more details, visit a Jayman show home or discuss with your friendly REALTOR®. You will be immediately impressed by Jayman BUILT's new "JAKE 26" Signature Home, located in the highly walkable, sought-after Cornerstone community. If you enjoy entertaining, want to live in an amazing new floor plan, and value ample space for all who visit, this is the home for you! Fall in love as you enter, offering over 2260+SF of true craftsmanship and beauty! Luxurious LVP flooring invites you into a lovely open floor plan featuring an amazing GOURMET kitchen boasting elegant granite counters, a sleek stainless steel Whirlpool appliance package with an electric slide-in stove, a French Door Refrigerator with ice maker, a built-in microwave and a Broan power pack built-in cabinet hood fan. An amazing 2-storey floor plan with a MAIN FLOOR OFFICE, quietly transitioning to the expansive kitchen that boasts a generous walk-thru pantry and centre island that overlooks the amazing living area with a lovely patio door that opens up nicely to your supersized rear yard. The upper level offers ample space to suit any lifestyle, with over 1,300 SF. THREE BEDROOMS with the beautiful Primary Suite boasting Jayman BUILT's luxurious ensuite including dual vanities, gorgeous SOAKER TUB & STAND-ALONE SHOWER. Thoughtfully separated by the pocket door, you will discover a spacious walk-in closet. A stunning centralized Bonus room with a walk-in closet separating the Primary wing from the additional bedrooms and a spacious Main Bath to complete the space. A beautiful open floor plan below adds an elevated addition to this home. Truly unique and one-of-a-kind! ADDITIONAL FEATURES: Jayman Complete hom e - Washer + Dryer + Window Blinds Included!, professionally designed Walnut color palette, open to above at front entry with 11ft ceiling, BBQ gas line, raised 9ft ceiling height and 3 pc rough-in plumbing. This lovely home, featuring the Prairie Elevation, has been completed with Jayman's Extra Fit & Finish and Jayman's reputable CORE PERFORMANCE. 10 Solar Panels, BuiltGreen Canada standard, with an EnerGuide Rating, UV-C Ultraviolet Light Air Purification System, High Efficiency furnace with Merv 13 Filters & HRV Unit, Navien-Brand Tankless Hot Water Heater, Triple Pane Windows & Smart Home Technology Solutions. Terrific amenities outside your door - Live healthy with an unrivalled community experience, from work to working out, dining to shopping, studying to a date night. Enjoy New urbanity, welcome to Cornerstone! (id:37074)

Property Features

Cooling: None Heating: Forced Air

Open House

This property has open houses!

March
7
Saturday
Starts at:

2:00 pm

Ends at:

4:00 pm

March
8
Sunday
Starts at:

2:00 pm

Ends at:

4:00 pm

Property Details

MLS® Number A2253055
Property Type Single Family
Neigbourhood Northeast Calgary
Community Name Cornerstone
Amenities Near By Park, Playground, Shopping
Features No Animal Home, No Smoking Home, Parking
Parking Space Total 4
Plan 2410507
Structure None

Parking

Attached Garage 2

Building

Bathroom Total 3
Bedrooms Above Ground 3
Bedrooms Total 3
Appliances Refrigerator, Dishwasher, Stove, Microwave, Hood Fan, Window Coverings, Garage Door Opener, Washer & Dryer, Water Heater - Tankless
Basement Development Unfinished
Basement Type Full (unfinished)
Constructed Date 2025
Construction Material Wood Frame
Construction Style Attachment Detached
Cooling Type None
Exterior Finish Brick, Vinyl Siding
Flooring Type Carpeted, Tile, Vinyl Plank
Foundation Type Poured Concrete
Half Bath Total 1
Heating Fuel Natural Gas
Heating Type Forced Air
Stories Total 2
Size Interior 2,267 Ft2
Total Finished Area 2267 Sqft
Type House
Utility Water Municipal Water

Rooms

Level Type Dimensions
Main Level Great Room 13.00 Ft x 12.01 Ft
Main Level Dining Room 13.00 Ft x 12.83 Ft
Main Level Kitchen 13.42 Ft x 12.01 Ft
Main Level 2pc Bathroom 5.00 Ft x 5.68 Ft
Main Level Office 6.75 Ft x 5.35 Ft
Main Level Pantry 5.00 Ft x 6.51 Ft
Upper Level Bonus Room 13.00 Ft x 14.34 Ft
Upper Level Other 9.00 Ft x 9.84 Ft
Upper Level Other 5.75 Ft x 5.17 Ft
Upper Level 5pc Bathroom 12.66 Ft x 12.01 Ft
Upper Level Laundry Room 9.74 Ft x 5.74 Ft
Upper Level Bedroom 9.25 Ft x 11.84 Ft
Upper Level Bedroom 9.25 Ft x 11.84 Ft
Upper Level Primary Bedroom 13.00 Ft x 13.32 Ft
Upper Level 4pc Bathroom 12.01 Ft x 5.25 Ft
Upper Level Other 5.08 Ft x 5.83 Ft

Land

Acreage No
Fence Type Not Fenced
Land Amenities Park, Playground, Shopping
Size Depth 56.35 M
Size Frontage 12.99 M
Size Irregular 611.00
Size Total 611 M2|4,051 - 7,250 Sqft
Size Total Text 611 M2|4,051 - 7,250 Sqft
Zoning Description R-g

When you contact Maverick Group, the best realtors in Airdrie, you will know that you are working with an agent and team who focuses on you and your needs. We will be with you every step of the way. From buying and selling to rental properties and relocation, we deliver results in the Airdrie real estate market and are ready to assist you with all of your real estate needs.

Airdrie Realtors

Real Estate Data supplied by CREA®’s MLS® System. CREA® is the owner of the copyright in its MLS® System. Data deemed reliable but not guaranteed accurate by CREA®. The trademarks MLS®, Multiple Listing Service® and the associated logos are owned by The Canadian Real Estate Association (CREA) and identify the quality of services provided by real estate professionals who are members of CREA. The trademarks REALTOR®, REALTORS®, and the REALTOR® logo are controlled by The Canadian Real Estate Association (CREA) and identify real estate professionals who are members of CREA. Used under license.

Book Your Consultation

Book Your Consultation

Book Your Consultation

Book Your Consultation

Book Your Consultation

Book Your Consultation