LOADING

342 Normandy Drive Sw Calgary, Alberta T3E 8G8

$1,825,000

MLS® Number: A2296488 Bedrooms: 6 Bathrooms: 5 Square Footage: 3256 sqft Community: Currie Barracks
×
×
×

Need to sell your current home to buy this one?

Find out how much it will sell for today!

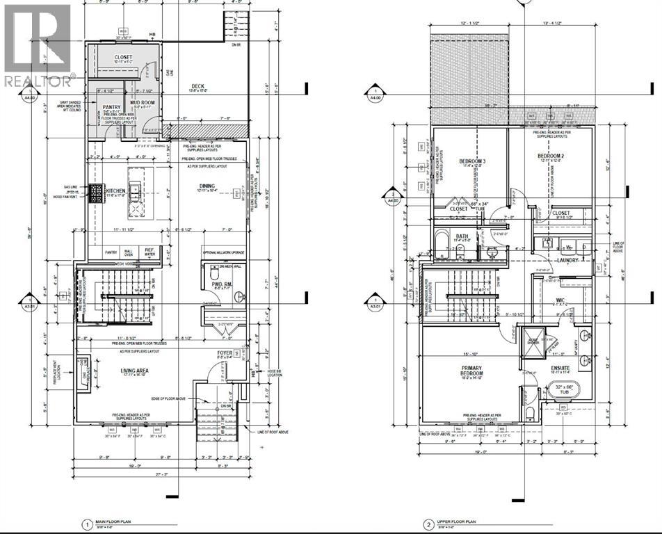
MASSIVE PRICE DROP!!!! Welcome to HARMONY HAVEN — A stunning modern farmhouse that embodies the essence of contemporary living while embracing the warmth of rustic charm. Designed by PHASE ONE DESIGN and expertly built by DOMINIUM RESIDENTIAL, this home is perfectly situated in the desirable community of Currie, just 7 minutes from Downtown Calgary. With 3,256 square feet above grade and over 4,300 square feet of developed living area, HARMONY HAVEN offers ample space for both relaxation and entertaining. As you approach, the sleek, modern façade draws you in, promising the elegance that awaits within.The heart of this home is the exquisite kitchen, featuring a striking waterfall island, a through sink, and top-of-the-line Fisher & Paykel built-in panel-covered fridge and freezer. Cooking enthusiasts will appreciate the natural gas stove with pot filler, convection oven, and speed oven/microwave, all complemented by stylish three-tone custom cabinetry illuminated by under-cabinet lighting.The spacious living room is designed for comfort, showcasing built-in shelving, a cozy fireplace, and a stunning lighting fixture that adds a touch of sophistication. This inviting space offers beautiful views of the picturesque streetscape, creating a serene atmosphere.Safety is prioritized with stairway lighting, guiding you throughout the home. The double car garage is fully finished with paint and epoxy flooring, featuring a charging point for your electric vehicle—perfect for the eco-conscious homeowner.HARMONY HAVEN is equipped with advanced technology, including rough ins for voice commands, wiring for cameras, four two-speaker zones, indoor ceiling speakers with woofers, outdoor speakers for the deck, and myQ garage door openers for remote access. The fully landscaped yard is enclosed with premium vinyl fencing, providing both privacy and style.Retreat to the elegant ensuite, where you'll find heated floors, a spacious double vanity with custom mirrors, and a l uxurious freestanding tub. The second floor includes the luxurious primary bedroom and two large secondary bedrooms and bathroom plus a laundry room, storage close all perfect for family or guests.The loft floor consists of a bonus room, a large home office and an additional bedroom/flex room with a full bathroomThe breathtaking lower level is an entertainer's dream, featuring custom built-ins, a grand wet bar, and generous natural light. This versatile space also includes a large flex room and an additional bedroom.Located in one of Calgary’s premier inner-city communities, HARMONY HAVEN offers easy access to parks, dog parks, walking and biking trails, and over 12 schools catering to all age groups. This exceptional home seamlessly blends elegant design with modern conveniences, making it a must-see for any discerning buyer. Don’t miss your opportunity to claim this luxurious residence as your own! (id:37074)

Property Features

Fireplace: Fireplace Cooling: Central Air Conditioning Heating: Central Heating, Other Landscape: Landscaped

Property Details

MLS® Number A2296488
Property Type Single Family
Neigbourhood Southwest Calgary
Community Name Currie Barracks
Amenities Near By Park, Playground, Schools, Shopping
Features Other, Wet Bar, Closet Organizers, Level, Gas Bbq Hookup
Parking Space Total 2
Plan 2011437
Structure Deck

Parking

Detached Garage 2

Building

Bathroom Total 5
Bedrooms Above Ground 4
Bedrooms Below Ground 2
Bedrooms Total 6
Appliances Refrigerator, Cooktop - Gas, Dishwasher, Microwave, Freezer, Oven - Built-in, Washer & Dryer
Basement Development Finished
Basement Type Full (finished)
Constructed Date 2025
Construction Material Poured Concrete, Wood Frame
Construction Style Attachment Detached
Cooling Type Central Air Conditioning
Exterior Finish Brick, Concrete
Fireplace Present Yes
Fireplace Total 2
Flooring Type Carpeted, Hardwood, Other, Tile
Foundation Type Poured Concrete
Half Bath Total 1
Heating Fuel Electric, Natural Gas
Heating Type Central Heating, Other
Stories Total 3
Size Interior 3,256 Ft2
Total Finished Area 3255.9 Sqft
Type House

Rooms

Level Type Dimensions
Second Level Bedroom 11.33 Ft x 12.00 Ft
Second Level Bedroom 12.92 Ft x 12.00 Ft
Second Level 4pc Bathroom 11.33 Ft x 5.00 Ft
Second Level Primary Bedroom 15.00 Ft x 14.83 Ft
Second Level 5pc Bathroom 10.92 Ft x 11.33 Ft
Second Level Other 9.08 Ft x 7.00 Ft
Third Level Bedroom 10.00 Ft x 20.42 Ft
Third Level 4pc Bathroom 8.08 Ft x 15.50 Ft
Third Level Office 8.08 Ft x 15.50 Ft
Third Level Bonus Room 18.00 Ft x 10.33 Ft
Basement 4pc Bathroom 7.92 Ft x 8.67 Ft
Basement Living Room 16.58 Ft x 14.17 Ft
Basement Bedroom 12.50 Ft x 11.42 Ft
Basement Bedroom 10.08 Ft x 16.08 Ft
Basement Recreational, Games Room 8.25 Ft x 12.25 Ft
Basement Storage 17.25 Ft x 3.67 Ft
Main Level Kitchen 11.50 Ft x 17.75 Ft
Main Level Other 5.00 Ft x 8.92 Ft
Main Level Dining Room 12.92 Ft x 16.33 Ft
Main Level Living Room 17.92 Ft x 14.83 Ft
Main Level 2pc Bathroom 6.42 Ft x 7.08 Ft
Main Level Foyer 8.25 Ft x 8.33 Ft
Main Level Storage 10.92 Ft x 5.17 Ft
Main Level Pantry 5.50 Ft x 8.92 Ft

Land

Acreage No
Fence Type Fence
Land Amenities Park, Playground, Schools, Shopping
Landscape Features Landscaped
Size Depth 32.59 M
Size Frontage 13.2 M
Size Irregular 385.00
Size Total 385 M2|4,051 - 7,250 Sqft
Size Total Text 385 M2|4,051 - 7,250 Sqft
Zoning Description Dc

When you contact Maverick Group, the best realtors in Airdrie, you will know that you are working with an agent and team who focuses on you and your needs. We will be with you every step of the way. From buying and selling to rental properties and relocation, we deliver results in the Airdrie real estate market and are ready to assist you with all of your real estate needs.

Airdrie Realtors

Real Estate Data supplied by CREA®’s MLS® System. CREA® is the owner of the copyright in its MLS® System. Data deemed reliable but not guaranteed accurate by CREA®. The trademarks MLS®, Multiple Listing Service® and the associated logos are owned by The Canadian Real Estate Association (CREA) and identify the quality of services provided by real estate professionals who are members of CREA. The trademarks REALTOR®, REALTORS®, and the REALTOR® logo are controlled by The Canadian Real Estate Association (CREA) and identify real estate professionals who are members of CREA. Used under license.

Book Your Consultation

Book Your Consultation

Book Your Consultation

Book Your Consultation

Book Your Consultation

Book Your Consultation