LOADING

21 Cornerbrook Lane Ne Calgary, Alberta T3N 2H1

$549,900

MLS® Number: A2278523 Bedrooms: 4 Bathrooms: 3 Square Footage: 1567 sqft Community: Cornerstone
×
×
×

Need to sell your current home to buy this one?

Find out how much it will sell for today!

PRICED TO SELL!!! 2025 built ! MAIN FLOOR BEDROOM ! MAIN FLOOR FULL WASHROOM ! SEPRATE ENTRANCE TO BASEMENT ! PIE SHAPE LOT! 5 PIECES WASHROOM WITH JACCUZI TUB, DOUBLE SINK AND STANDING SHOWER! STAINLESS STEEL SAMSUNG APPLIANCES !! BRAND NEW WINDOW BLINDS!! Welcome to 2025 Built stunning 4-BEDROOM, 3 FULL BATHROOM fully upgraded semi-detached home, ideally situated on one of the largest pie-shaped corner lot in the desirable community of Cornerstone, Calgary. Offering an exceptionally large yard with enough space to potentially accommodate a triple garage. Thoughtfully designed with both style and functionality in mind, this home provides an abundance of space, modern finishes, and exceptional upgrades.The main floor boasts 9 ft ceilings and a bright open-concept layout filled with natural light. The contemporary kitchen is beautifully appointed with quartz countertops throughout, upgraded cabinetry, and Samsung stainless steel appliances, making it a true highlight of the home. A main floor BEDROOM with a full BATHROOM adds flexibility—perfect for guests or multi-generational living.Upstairs, you’ll find a convenient laundry room along with three generously sized bedrooms. The primary retreat is a standout, featuring a walk-in closet and a spa-inspired 5-PIECE ENSUITE complete with quartz counters, DOUBLE SINKS, and a luxurious JACUZZI TUB. Two additional bedrooms and another full bathroom provide plenty of space for the whole family.The lower level features an unfinished basement with impressive 9 ft ceilings and a SEPARATE SIDE ENTRANCE, offering endless potential for future development.Located in the thriving community of Cornerstone, you’ll enjoy easy access to schools, parks, shopping, transit, and major roadways. Don’t miss the opportunity to own this exceptional home that blends luxury, comfort, and long-term value. Book your private showing today! (id:37074)

Property Features

Cooling: None Heating: Central Heating

Property Details

MLS® Number A2278523
Property Type Single Family
Neigbourhood Northeast Calgary
Community Name Cornerstone
Amenities Near By Airport, Park, Playground, Schools
Features Pvc Window, No Animal Home, No Smoking Home
Parking Space Total 3
Plan 2310164
Structure None

Parking

Parking Pad

Building

Bathroom Total 3
Bedrooms Above Ground 4
Bedrooms Total 4
Appliances Washer, Refrigerator, Range - Electric, Dishwasher, Dryer, Microwave Range Hood Combo
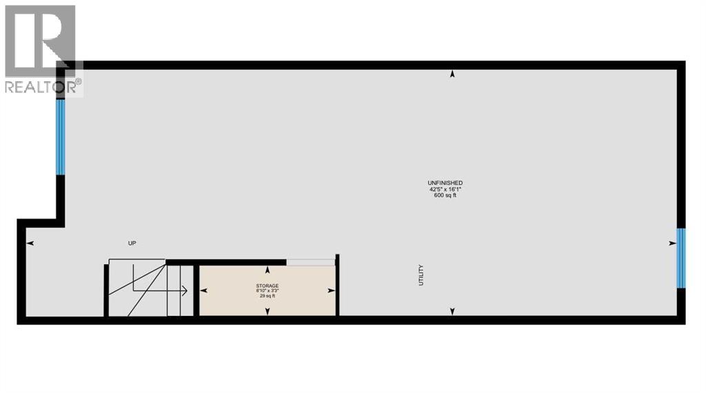
Basement Features Separate Entrance
Basement Type See Remarks
Constructed Date 2025
Construction Material Wood Frame
Construction Style Attachment Semi-detached
Cooling Type None
Exterior Finish Vinyl Siding
Flooring Type Carpeted, Tile, Vinyl Plank
Foundation Type Poured Concrete
Heating Type Central Heating
Stories Total 2
Size Interior 1,567 Ft2
Total Finished Area 1567.3 Sqft
Type Duplex

Rooms

Level Type Dimensions
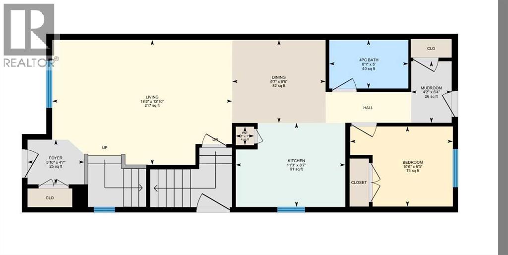
Second Level Other 5.25 Ft x 8.08 Ft
Second Level 5pc Bathroom 4.92 Ft x 12.67 Ft
Second Level Laundry Room 2.67 Ft x 5.67 Ft
Second Level 4pc Bathroom 5.25 Ft x 8.00 Ft
Second Level Bedroom 9.67 Ft x 11.33 Ft
Second Level Bedroom 8.83 Ft x 12.75 Ft
Second Level Primary Bedroom 11.50 Ft x 12.50 Ft
Main Level Living Room 12.75 Ft x 18.42 Ft
Main Level Dining Room 8.50 Ft x 9.50 Ft
Main Level Kitchen 8.58 Ft x 11.17 Ft
Main Level Pantry 1.92 Ft x 1.83 Ft
Main Level 4pc Bathroom 4.92 Ft x 8.00 Ft
Main Level Bedroom 8.17 Ft x 8.25 Ft
Main Level Other 8.58 Ft x 4.17 Ft
Main Level Other 4.58 Ft x 5.83 Ft

Land

Acreage No
Fence Type Not Fenced
Land Amenities Airport, Park, Playground, Schools
Size Depth 35.96 M
Size Frontage 6.34 M
Size Irregular 4596.19
Size Total 4596.19 Sqft|4,051 - 7,250 Sqft
Size Total Text 4596.19 Sqft|4,051 - 7,250 Sqft
Zoning Description R-g

When you contact Maverick Group, the best realtors in Airdrie, you will know that you are working with an agent and team who focuses on you and your needs. We will be with you every step of the way. From buying and selling to rental properties and relocation, we deliver results in the Airdrie real estate market and are ready to assist you with all of your real estate needs.

Airdrie Realtors

Real Estate Data supplied by CREA®’s MLS® System. CREA® is the owner of the copyright in its MLS® System. Data deemed reliable but not guaranteed accurate by CREA®. The trademarks MLS®, Multiple Listing Service® and the associated logos are owned by The Canadian Real Estate Association (CREA) and identify the quality of services provided by real estate professionals who are members of CREA. The trademarks REALTOR®, REALTORS®, and the REALTOR® logo are controlled by The Canadian Real Estate Association (CREA) and identify real estate professionals who are members of CREA. Used under license.

Book Your Consultation

Book Your Consultation

Book Your Consultation

Book Your Consultation

Book Your Consultation

Book Your Consultation