LOADING

1947 Mccaskill Drive Crossfield, Alberta T0M 0S0

$499,000

Need to sell your current home to buy this one?

Find out how much it will sell for today!

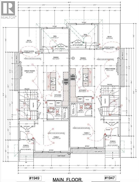
Welcome to this spacious and thoughtfully designed duplex in the charming town of Crossfield, Alberta, offering over 1,700 square feet of comfortable living space—perfect for growing families, professionals, or those seeking flexible work-from-home options.The main floor features a bright open-concept layout that seamlessly connects the living room, kitchen, and dining area, creating an ideal space for everyday living and entertaining. A separate family room provides additional space to relax or gather, while a main-floor bedroom—easily used as a home office or guest room—adds excellent versatility. A full bathroom completes the main level.Upstairs, you’ll find a well-appointed primary bedroom retreat complete with a walk-in closet and private ensuite bathroom. The upper level also includes two additional bedrooms, another full bathroom, a convenient laundry area, and a bonus room—perfect for a playroom, media space, or second living area.Located in the welcoming community of Crossfield, this duplex offers small-town charm with easy access to amenities and commuter routes. A fantastic opportunity to enjoy space, comfort, and functionality. (id:37074)

Property Features

Fireplace: Fireplace Cooling: None Heating: High-Efficiency Furnace

Property Details

MLS® Number A2286621
Property Type Single Family
Amenities Near By Playground, Schools, Shopping
Features Pvc Window, Closet Organizers, Gas Bbq Hookup
Parking Space Total 2
Plan 2410344
Structure Deck

Parking

Parking Pad

Building

Bathroom Total 3
Bedrooms Above Ground 4
Bedrooms Total 4
Appliances See Remarks
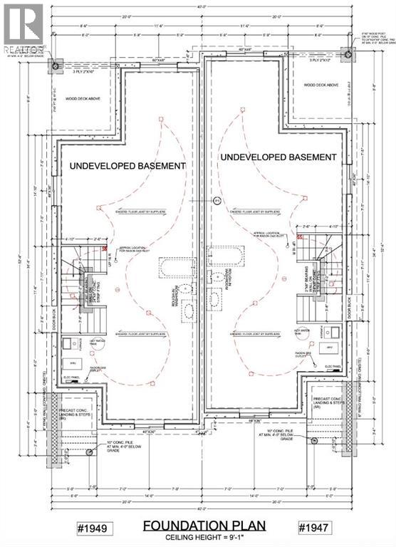
Basement Development Unfinished
Basement Features Separate Entrance
Basement Type Full (unfinished)
Constructed Date 2025
Construction Style Attachment Semi-detached
Cooling Type None
Exterior Finish Vinyl Siding
Fireplace Present Yes
Fireplace Total 1
Flooring Type Carpeted, Ceramic Tile, Laminate
Foundation Type Poured Concrete
Heating Fuel Natural Gas
Heating Type High-efficiency Furnace
Stories Total 2
Size Interior 1,714 Ft2
Total Finished Area 1713.8 Sqft
Type Duplex

Rooms

Level Type Dimensions
Main Level Living Room 13.08 Ft x 11.75 Ft
Main Level Kitchen 8.33 Ft x 10.50 Ft
Main Level Dining Room 8.33 Ft x 10.00 Ft
Main Level 4pc Bathroom 7.92 Ft x 4.92 Ft
Main Level Bedroom 10.58 Ft x 6.92 Ft
Main Level Family Room 10.75 Ft x 14.00 Ft
Upper Level Primary Bedroom 10.75 Ft x 11.33 Ft
Upper Level 4pc Bathroom 9.42 Ft x 8.75 Ft
Upper Level Bedroom 9.08 Ft x 9.08 Ft
Upper Level Bedroom 9.67 Ft x 11.00 Ft
Upper Level 4pc Bathroom 5.25 Ft x 7.92 Ft
Upper Level Bonus Room 11.83 Ft x 9.33 Ft
Upper Level Laundry Room 3.08 Ft x 3.33 Ft

Land

Acreage No
Fence Type Not Fenced
Land Amenities Playground, Schools, Shopping
Size Depth 35.05 M
Size Frontage 7.62 M
Size Irregular 2871.00
Size Total 2871 Sqft|0-4,050 Sqft
Size Total Text 2871 Sqft|0-4,050 Sqft
Zoning Description R-3

When you contact Maverick Group, the best realtors in Airdrie, you will know that you are working with an agent and team who focuses on you and your needs. We will be with you every step of the way. From buying and selling to rental properties and relocation, we deliver results in the Airdrie real estate market and are ready to assist you with all of your real estate needs.

Airdrie Realtors

Real Estate Data supplied by CREA®’s MLS® System. CREA® is the owner of the copyright in its MLS® System. Data deemed reliable but not guaranteed accurate by CREA®. The trademarks MLS®, Multiple Listing Service® and the associated logos are owned by The Canadian Real Estate Association (CREA) and identify the quality of services provided by real estate professionals who are members of CREA. The trademarks REALTOR®, REALTORS®, and the REALTOR® logo are controlled by The Canadian Real Estate Association (CREA) and identify real estate professionals who are members of CREA. Used under license.

Book Your Consultation

Book Your Consultation

Book Your Consultation

Book Your Consultation

Book Your Consultation

Book Your Consultation