LOADING

104 Falmere Way Ne Calgary, Alberta T3J 2Y5

$435,900

MLS® Number: A2286404 Bedrooms: 4 Bathrooms: 3 Square Footage: 1070 sqft Community: Falconridge
×
×
×

Need to sell your current home to buy this one?

Find out how much it will sell for today!

Welcome to this 3 bedroom, 2 storey detached home in Falconridge. This home features a great main floor plan with a bright living room complete with brick wood burning fireplace, 2 piece bathroom and there is also a kitchen and dining area with a glass sliding door to opens to the large backyard. Upstairs you will find a good sized master bedroom with 2 additional bedrooms and a 4 piece bathroom. Your lower level (with separate entrance) features an illegal suite complete with a kitchen, bedroom, 3 piece bathroom, separate laundry setup is a mortgage helper. Convenient on demand hot water tank and new furnace was recently replaced back in December 2025 with newer siding and roof shingles replaced back in 2021. Out back you have a single detached garage and plenty of yard space. This home is also ideally situated close to schools, walking distance to Co-op plaza and public transit is just a short walk away. Priced accordingly and great for a handy man. Call your favorite realtor to view today! (id:37074)

Property Features

Fireplace: Fireplace Cooling: None Heating: Forced Air Landscape: Landscaped

Property Details

MLS® Number A2286404
Property Type Single Family
Neigbourhood Northeast Calgary
Community Name Falconridge
Amenities Near By Schools
Features See Remarks, Back Lane
Parking Space Total 1
Plan 8310081
Structure See Remarks

Parking

Other
Detached Garage 1

Building

Bathroom Total 3
Bedrooms Above Ground 3
Bedrooms Below Ground 1
Bedrooms Total 4
Appliances Washer, Refrigerator, Dishwasher, Stove, Dryer, Hood Fan
Basement Development Finished
Basement Features Walk-up, Suite
Basement Type Full (finished)
Constructed Date 1988
Construction Material Poured Concrete
Construction Style Attachment Detached
Cooling Type None
Exterior Finish Aluminum Siding, Concrete, See Remarks
Fireplace Present Yes
Fireplace Total 1
Flooring Type Carpeted, Ceramic Tile, Laminate
Foundation Type Poured Concrete
Half Bath Total 1
Heating Fuel Natural Gas
Heating Type Forced Air
Stories Total 2
Size Interior 1,070 Ft2
Total Finished Area 1070.3 Sqft
Type House

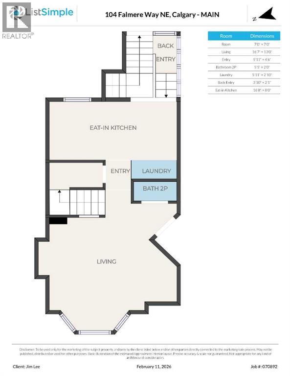
Rooms

Level Type Dimensions
Second Level Primary Bedroom 14.33 Ft x 10.00 Ft
Second Level Bedroom 8.42 Ft x 10.67 Ft
Second Level Bedroom 7.92 Ft x 10.67 Ft
Second Level 4pc Bathroom 5.00 Ft x 7.67 Ft
Lower Level Bedroom 15.33 Ft x 8.75 Ft
Lower Level 3pc Bathroom 5.33 Ft x 8.67 Ft
Main Level 2pc Bathroom 5.42 Ft x 2.00 Ft
Main Level Living Room 16.58 Ft x 13.00 Ft
Main Level Kitchen 16.67 Ft x 8.00 Ft
Main Level Other 7.00 Ft x 7.00 Ft

Land

Acreage No
Fence Type Fence
Land Amenities Schools
Landscape Features Landscaped
Size Depth 9.45 M
Size Frontage 2.74 M
Size Irregular 279.00
Size Total 279 M2|0-4,050 Sqft
Size Total Text 279 M2|0-4,050 Sqft
Zoning Description R-cg

When you contact Maverick Group, the best realtors in Airdrie, you will know that you are working with an agent and team who focuses on you and your needs. We will be with you every step of the way. From buying and selling to rental properties and relocation, we deliver results in the Airdrie real estate market and are ready to assist you with all of your real estate needs.

Airdrie Realtors

Real Estate Data supplied by CREA®’s MLS® System. CREA® is the owner of the copyright in its MLS® System. Data deemed reliable but not guaranteed accurate by CREA®. The trademarks MLS®, Multiple Listing Service® and the associated logos are owned by The Canadian Real Estate Association (CREA) and identify the quality of services provided by real estate professionals who are members of CREA. The trademarks REALTOR®, REALTORS®, and the REALTOR® logo are controlled by The Canadian Real Estate Association (CREA) and identify real estate professionals who are members of CREA. Used under license.

Book Your Consultation

Book Your Consultation

Book Your Consultation

Book Your Consultation

Book Your Consultation

Book Your Consultation