LOADING

101, 625 2 Avenue Nw Calgary, Alberta T2N 0E2

$959,900

MLS® Number: A2277154 Bedrooms: 4 Bathrooms: 4 Square Footage: 1675 sqft Community: Sunnyside
×
×
×

Need to sell your current home to buy this one?

Find out how much it will sell for today!

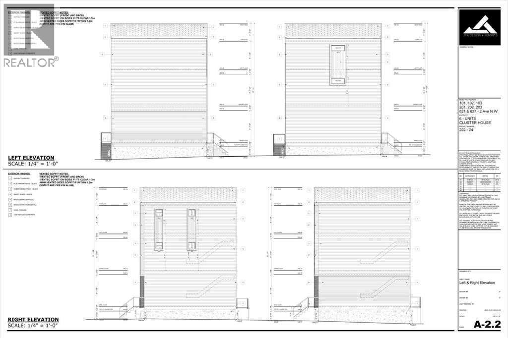
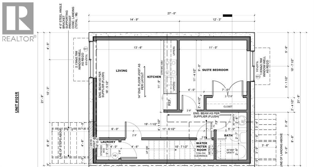
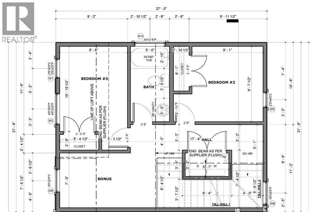
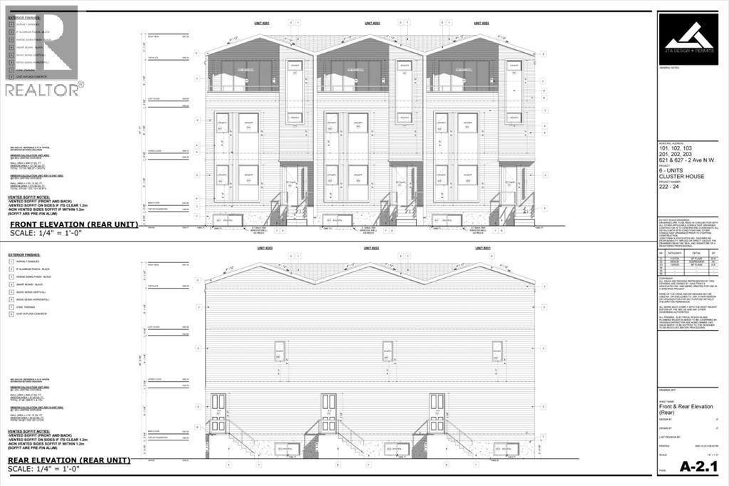
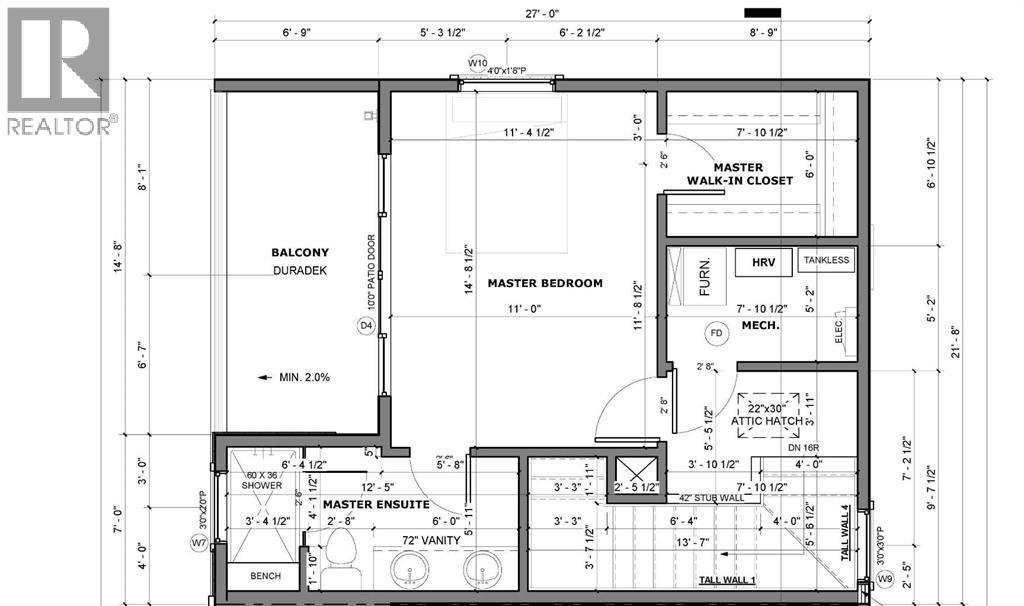
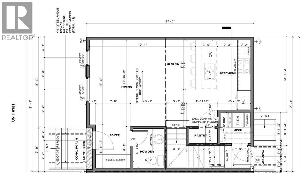
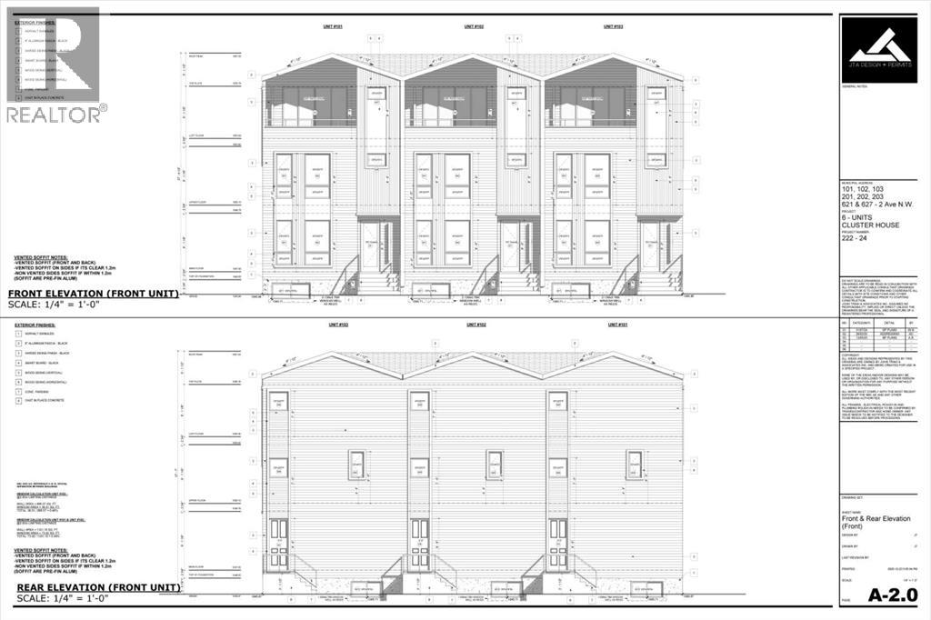
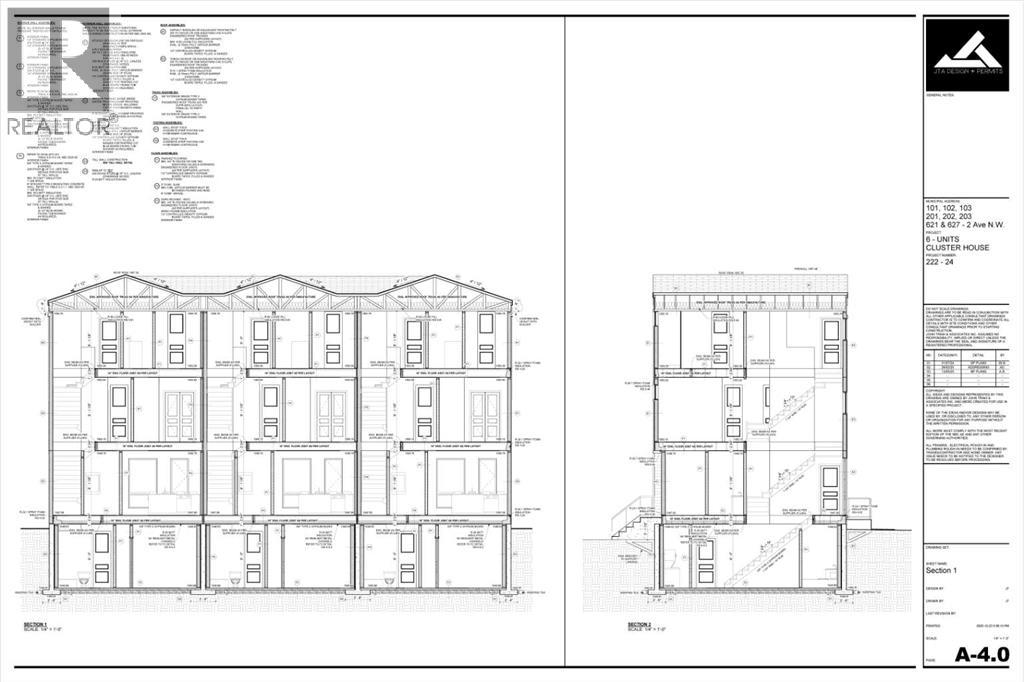
BRAND NEW FRONT FACING END-UNIT TOWNHOME | OUTSTANDING SUNNYSIDE INNER-CITY LOCATION | 3 STOREYS ABOVE GRADE | PRIVATE PRIMARY RETREAT WITH BALCONY | BONUS ROOM + 3 BEDROOMS | OPEN-CONCEPT MAIN FLOOR | LEGAL 1-BEDROOM BASEMENT SUITE | FIRE-RATED & SOUND-SEPARATED CONSTRUCTION | Brand new and currently under construction, this end-unit inner-city townhome delivers a thoughtfully designed layout paired with a fully self-contained legal basement suite, offering exceptional flexibility for homeowners, investors or multi-generational living. Quality construction, modern design and a highly functional floorplan combine to create a private and low-maintenance urban residence in one of Calgary’s most desirable neighbourhoods. The open-concept main floor is designed as a great-room style living space, seamlessly connecting the kitchen, dining and living areas to support everyday living and entertaining with ease. Designed for everyday usability, the kitchen features modern appliances and generous prep and storage space, while the end-unit position enhances privacy and natural light. The second level features 2 well-proportioned bedrooms, a full 4-piece bathroom, convenient upper-level laundry and a dedicated bonus room ideal for a home office, media space or additional living area. A true owner’s oasis, the entire third level is reserved as a private primary retreat, complete with a large walk-in closet, a luxurious ensuite and a private balcony that creates separation from the rest of the home. The fully developed legal basement suite includes a private entrance, dedicated kitchen, living area, bedroom, full bathroom and in-suite laundry, providing excellent rental potential and true separation between living spaces. Built to current code with fire-rated and sound-separated assemblies and efficient mechanical systems, this property offers peace of mind and long-term durability. Ideally located in the heart of Sunnyside, just steps from boutique shops, acclaimed restaurants, independent cafes, the LRT station, the Bow River pathway system and downtown, this home combines beautiful brand-new construction and a vibrant inner-city lifestyle. (id:37074)

Property Features

Cooling: None Heating: Forced Air

Property Details

MLS® Number A2277154
Property Type Single Family
Neigbourhood Northwest Calgary
Community Name Sunnyside
Amenities Near By Park, Playground, Schools, Shopping
Community Features Pets Allowed With Restrictions
Features See Remarks, Back Lane, No Animal Home, No Smoking Home, Parking
Parking Space Total 1
Plan 1948p

Parking

Detached Garage 1

Building

Bathroom Total 4
Bedrooms Above Ground 3
Bedrooms Below Ground 1
Bedrooms Total 4
Appliances See Remarks
Basement Development Finished
Basement Features Separate Entrance, Suite
Basement Type Full (finished)
Constructed Date 2026
Construction Material Wood Frame
Construction Style Attachment Attached
Cooling Type None
Exterior Finish Brick, Stucco
Fire Protection Smoke Detectors
Flooring Type Other
Foundation Type Poured Concrete
Half Bath Total 1
Heating Fuel Natural Gas
Heating Type Forced Air
Stories Total 3
Size Interior 1,675 Ft2
Total Finished Area 1675 Sqft
Type Row / Townhouse

Rooms

Level Type Dimensions
Second Level Bedroom 10.83 Ft x 8.67 Ft
Second Level Bedroom 9.58 Ft x 11.08 Ft
Second Level Bonus Room 7.00 Ft x 11.67 Ft
Second Level 4pc Bathroom Measurements not available
Third Level Primary Bedroom 14.67 Ft x 11.00 Ft
Third Level 4pc Bathroom Measurements not available
Third Level Other 7.92 Ft x 6.00 Ft
Main Level 2pc Bathroom Measurements not available
Main Level Living Room 9.17 Ft x 13.83 Ft
Main Level Dining Room 6.50 Ft x 13.83 Ft
Main Level Kitchen 10.42 Ft x 12.50 Ft
Main Level Foyer 6.75 Ft x 6.17 Ft
Unknown Living Room 11.50 Ft x 16.42 Ft
Unknown Kitchen 11.75 Ft x 4.00 Ft
Unknown Bedroom 11.00 Ft x 11.33 Ft
Unknown 4pc Bathroom Measurements not available

Land

Acreage No
Fence Type Not Fenced
Land Amenities Park, Playground, Schools, Shopping
Size Irregular 416.00
Size Total 416 M2|4,051 - 7,250 Sqft
Size Total Text 416 M2|4,051 - 7,250 Sqft
Zoning Description M-cg D72

When you contact Maverick Group, the best realtors in Airdrie, you will know that you are working with an agent and team who focuses on you and your needs. We will be with you every step of the way. From buying and selling to rental properties and relocation, we deliver results in the Airdrie real estate market and are ready to assist you with all of your real estate needs.

Airdrie Realtors

Real Estate Data supplied by CREA®’s MLS® System. CREA® is the owner of the copyright in its MLS® System. Data deemed reliable but not guaranteed accurate by CREA®. The trademarks MLS®, Multiple Listing Service® and the associated logos are owned by The Canadian Real Estate Association (CREA) and identify the quality of services provided by real estate professionals who are members of CREA. The trademarks REALTOR®, REALTORS®, and the REALTOR® logo are controlled by The Canadian Real Estate Association (CREA) and identify real estate professionals who are members of CREA. Used under license.

Book Your Consultation

Book Your Consultation

Book Your Consultation

Book Your Consultation

Book Your Consultation

Book Your Consultation