LOADING

3511 42 Street Sw Calgary, Alberta T3E 3M7

$1,024,900

MLS® Number: A2270058 Bedrooms: 4 Bathrooms: 4 Square Footage: 1905 sqft Community: Glenbrook
×
×
×

Need to sell your current home to buy this one?

Find out how much it will sell for today!

*OPEN HOUSE SAT/ SUN JAN. 17, 18th 2-4 pm* Timeless design, modern comfort, and everyday function come together on a quiet tree-lined street in this stunning new home in GLENBROOK. With expansive windows, warm natural materials, and elevated finishes throughout, it’s crafted for family living in one of Calgary’s most established neighbourhoods. Step in from the covered entry to a bright foyer with sight lines across the open main floor, where light oak hardwood carries seamlessly through the principal rooms. The front dining room is anchored by a custom feature wall, setting the tone for the thoughtful millwork found throughout. An elevated powder room greets you upon entering & provides privacy & convenience through a hidden door. At the heart of the home, the chef-inspired kitchen blends beauty with purpose—two full pantries, crisp white uppers over matching oak lowers, a striking waterfall quartz island, exposed beams and professional KitchenAid appliances including a flat gas cooktop, built-in wall oven, and French-door fridge. Clean lines, elegant lighting, and generous prep space make this a true culinary hub. A well-designed butlers pantry & mudroom with custom built-ins keeps everyday essentials organized, The floor plan flows naturally into the inviting living room, where custom coffered ceilings & built-ins frame a cozy gas fireplace & create the perfect space to unwind or gather with friends & family. Large windows and an 8’ sliding patio door pull in west light and open directly to the backyard for easy indoor/outdoor living. Step outside to a sun-soaked west-facing backyard, complete with a large rear deck and BBQ gas line, ready for late summer evenings & weekend gatherings. A double garage plus a striking exterior finished in stucco & Hardie-board siding complete this exceptional property. Head up the alluring hardwood stairs to find more of the same hardwood floors & a thoughtfully placed built-in desk that creates the perfect homework zone or de dicated home office. A spacious laundry room with quartz countertop, pre-wash sink, plus extra storage ensures the second floor is as practical as it is comfortable.Retreat to the serene primary suite, where vaulted ceilings lift the space and morning sun pours through oversized windows. The ensuite reads like a private spa, offering a massive walk-in shower with body jets, (roughed in steam shower), double sinks, a deep free-standing soaker tub, & beautifully curated tile throughout. A custom walk-in closet completes the sanctuary. Two additional bedrooms sit down the hall. One even features its own custom built in closet.The lower level flexes effortlessly with family life—an expansive Rec room with custom built-in TV wall, a generous flex/rec area with a full wet bar, plus an additional bedroom and full bath, ideal for guests, teens, or extended family. Located close to schools, parks, playgrounds, shopping, transit, & major routes—offering a perfect blend of community charm & everyday convenience. (id:37074)

Property Features

Fireplace: Fireplace Cooling: None, See Remarks Heating: Other, Forced Air, In Floor Heating Landscape: Lawn

Property Details

MLS® Number A2270058
Property Type Single Family
Neigbourhood Glenbrook
Community Name Glenbrook
Amenities Near By Park, Playground, Recreation Nearby, Schools, Shopping
Features Treed, See Remarks, Back Lane, Wet Bar, Pvc Window, Closet Organizers, No Animal Home, Gas Bbq Hookup
Parking Space Total 4
Plan 2511040
Structure Deck

Parking

Detached Garage 2
See Remarks

Building

Bathroom Total 4
Bedrooms Above Ground 3
Bedrooms Below Ground 1
Bedrooms Total 4
Appliances Refrigerator, Dishwasher, Microwave, Oven - Built-in, Hood Fan
Basement Development Finished
Basement Type Full (finished)
Constructed Date 2025
Construction Style Attachment Semi-detached
Cooling Type None, See Remarks
Exterior Finish Stucco
Fireplace Present Yes
Fireplace Total 1
Flooring Type Carpeted, Hardwood, Tile
Foundation Type Poured Concrete
Half Bath Total 1
Heating Fuel Natural Gas
Heating Type Other, Forced Air, In Floor Heating
Stories Total 2
Size Interior 1,905 Ft2
Total Finished Area 1904.61 Sqft
Type Duplex

Rooms

Level Type Dimensions
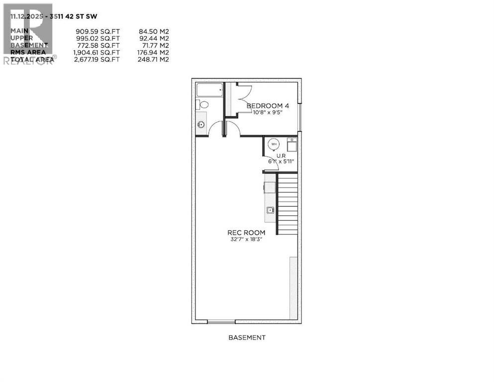
Basement Recreational, Games Room 23.58 Ft x 18.00 Ft
Basement Other 8.67 Ft x 2.17 Ft
Basement Bedroom 10.67 Ft x 9.42 Ft
Basement 4pc Bathroom 9.42 Ft x 4.92 Ft
Basement Furnace 6.08 Ft x 5.92 Ft
Main Level Kitchen 21.17 Ft x 8.92 Ft
Main Level Other 12.67 Ft x 10.42 Ft
Main Level Living Room 13.42 Ft x 12.17 Ft
Main Level 2pc Bathroom 6.25 Ft x 5.08 Ft
Main Level Other 12.17 Ft x 5.42 Ft
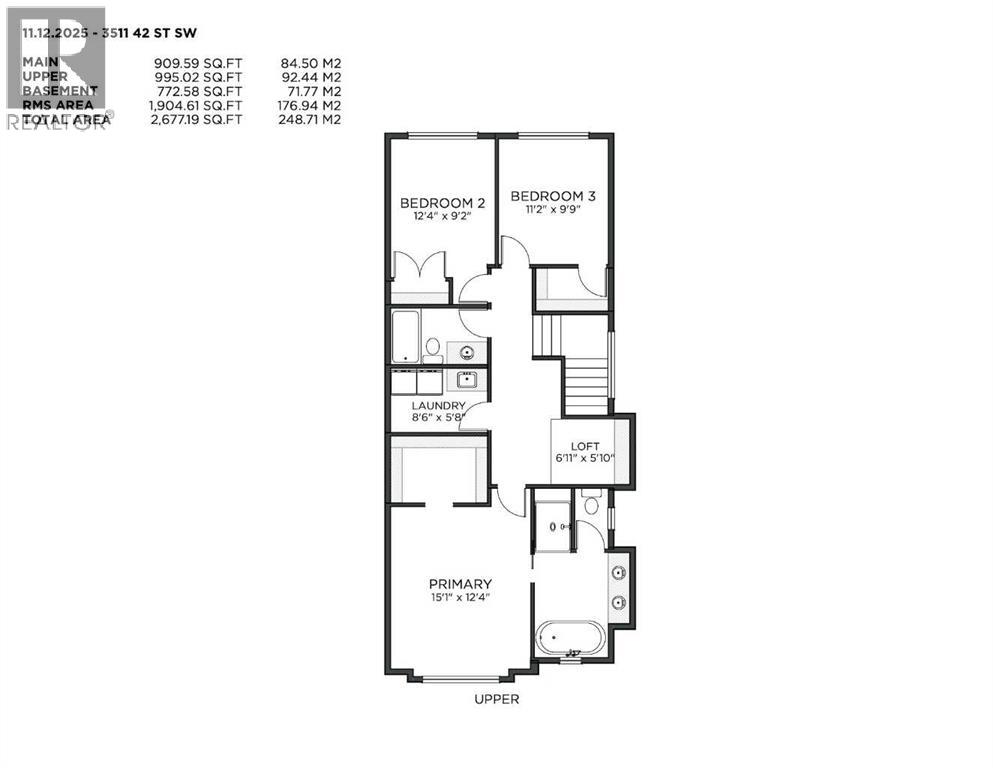
Upper Level Loft 6.92 Ft x 5.83 Ft
Upper Level Primary Bedroom 15.08 Ft x 12.33 Ft
Upper Level Bedroom 12.33 Ft x 9.17 Ft
Upper Level Bedroom 11.17 Ft x 9.75 Ft
Upper Level 4pc Bathroom 8.50 Ft x 4.92 Ft
Upper Level 5pc Bathroom 14.92 Ft x 8.50 Ft
Upper Level Laundry Room 8.50 Ft x 5.67 Ft

Land

Acreage No
Fence Type Fence
Land Amenities Park, Playground, Recreation Nearby, Schools, Shopping
Landscape Features Lawn
Size Depth 35.03 M
Size Frontage 7.62 M
Size Irregular 2871.31
Size Total 2871.31 Sqft|0-4,050 Sqft
Size Total Text 2871.31 Sqft|0-4,050 Sqft
Zoning Description R-cg

When you contact Maverick Group, the best realtors in Airdrie, you will know that you are working with an agent and team who focuses on you and your needs. We will be with you every step of the way. From buying and selling to rental properties and relocation, we deliver results in the Airdrie real estate market and are ready to assist you with all of your real estate needs.

Airdrie Realtors

Real Estate Data supplied by CREA®’s MLS® System. CREA® is the owner of the copyright in its MLS® System. Data deemed reliable but not guaranteed accurate by CREA®. The trademarks MLS®, Multiple Listing Service® and the associated logos are owned by The Canadian Real Estate Association (CREA) and identify the quality of services provided by real estate professionals who are members of CREA. The trademarks REALTOR®, REALTORS®, and the REALTOR® logo are controlled by The Canadian Real Estate Association (CREA) and identify real estate professionals who are members of CREA. Used under license.

Book Your Consultation

Book Your Consultation

Book Your Consultation

Book Your Consultation

Book Your Consultation

Book Your Consultation