LOADING

3402, 16969 24 Street Sw Calgary, Alberta T2Y 0L2

$299,900

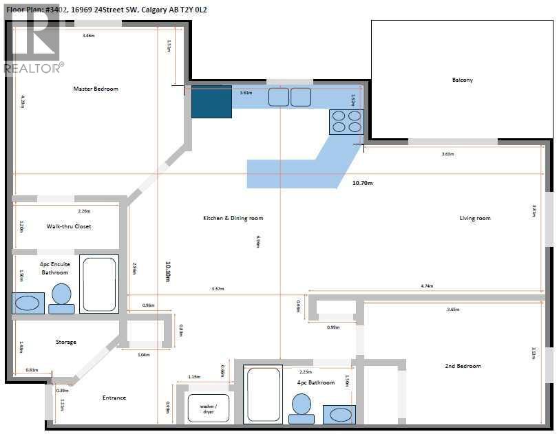
MLS® Number: A2299370 Bedrooms: 2 Bathrooms: 2 Square Footage: 977 sqft Community: Bridlewood
×
×
×

Need to sell your current home to buy this one?

Find out how much it will sell for today!

Welcome to The top floor, corner unit—the most sought-after floor plan in the complex—offering a functional layout and exceptional natural light. This top-floor, corner unit features two bedrooms, two full bathrooms, and one titled parking stall, with no neighbours above—just the sky.Backing directly onto the lush ravine, this home delivers breathtaking views of the city, summer fireworks, and even the occasional winter aurora. Step inside and you’ll immediately feel at home in the bright, open-concept living space. The layout includes a spacious dining area, a central kitchen with a breakfast bar, and a sun-filled family room with ample space for any size sofa.Enjoy relaxing or entertaining on your oversized corner balcony, perfectly positioned to take in the stunning views and overlook the surroundings. The generous primary bedroom offers a walk-through closet and a 4pc ensuite bathroom. The second bedroom is ideally located on the opposite side of the unit, adjacent to the second 4pc bathroom—perfect for guests, roommates, or a home office.Additional highlights include in-suite laundry, a good size in-suite storage room, and more windows and natural light than any other suite. Condo fees include all utilities, adding exceptional value and peace of mind.Easy access to the Stoney Trail—perfect for quick trips to the mountains west or seamless travel anywhere in the city.Book your private viewing today and experience this incredible opportunity to own a truly special condo in a prime location. (id:37074)

Property Features

Cooling: None Heating: Baseboard Heaters

Property Details

MLS® Number A2299370
Property Type Single Family
Neigbourhood Bridlewood
Community Name Bridlewood
Amenities Near By Playground, Schools, Shopping
Community Features Pets Allowed With Restrictions
Features No Animal Home, No Smoking Home, Parking
Parking Space Total 1
Plan 1012196

Parking

Underground

Building

Bathroom Total 2
Bedrooms Above Ground 2
Bedrooms Total 2
Appliances Refrigerator, Dishwasher, Stove, Microwave Range Hood Combo, Washer/dryer Stack-up
Constructed Date 2010
Construction Material Wood Frame
Construction Style Attachment Attached
Cooling Type None
Exterior Finish Brick, Vinyl Siding
Flooring Type Carpeted, Linoleum
Heating Type Baseboard Heaters
Stories Total 4
Size Interior 977 Ft2
Total Finished Area 977 Sqft
Type Apartment

Rooms

Level Type Dimensions
Main Level Primary Bedroom 4.29 M x 3.46 M
Main Level Bedroom 3.13 M x 3.65 M
Main Level Living Room 3.81 M x 4.74 M
Main Level Other 6.96 M x 3.57 M
Main Level 4pc Bathroom 1.50 M x 2.26 M
Main Level 4pc Bathroom 1.50 M x 2.23 M

Land

Acreage No
Land Amenities Playground, Schools, Shopping
Size Total Text Unknown
Zoning Description M-1 D75

When you contact Maverick Group, the best realtors in Airdrie, you will know that you are working with an agent and team who focuses on you and your needs. We will be with you every step of the way. From buying and selling to rental properties and relocation, we deliver results in the Airdrie real estate market and are ready to assist you with all of your real estate needs.

Airdrie Realtors

Real Estate Data supplied by CREA®’s MLS® System. CREA® is the owner of the copyright in its MLS® System. Data deemed reliable but not guaranteed accurate by CREA®. The trademarks MLS®, Multiple Listing Service® and the associated logos are owned by The Canadian Real Estate Association (CREA) and identify the quality of services provided by real estate professionals who are members of CREA. The trademarks REALTOR®, REALTORS®, and the REALTOR® logo are controlled by The Canadian Real Estate Association (CREA) and identify real estate professionals who are members of CREA. Used under license.

Book Your Consultation

Book Your Consultation

Book Your Consultation

Book Your Consultation

Book Your Consultation

Book Your Consultation