LOADING

315 Waterford Road Chestermere, Alberta T1X 3B3

$975,000

MLS® Number: A2263555 Bedrooms: 6 Bathrooms: 4 Square Footage: 2845 sqft Community: Waterford
×
×
×

Need to sell your current home to buy this one?

Find out how much it will sell for today!

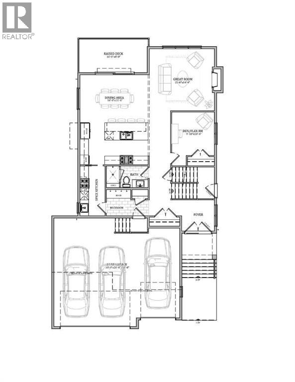
Don’t miss this exceptional opportunity to own a rare 6-bedroom home in the highly sought-after community of Waterford in Chestermere. Situated on a wide corner lot, this home offers impressive curb appeal with its grand double door entry and a spacious triple front attached garage. Inside, the thoughtfully designed open-concept main floor features a bedroom and full bathroom, ideal for guests or multigenerational living. The gourmet kitchen is paired with a generous spice kitchen, providing added functionality for daily cooking and entertaining. Upstairs, you'll find 5 well-sized bedrooms, including a luxurious primary master suite and a secondary master with its own private ensuite—perfect for large or extended families. A spacious bonus room and convenient upstairs laundry complete the upper level. With over 2,800 sq ft of living space, this home blends style, space, and practicality—perfect for growing families or those who simply want room to spread out. The unfinished basement includes a separate side entrance, providing a fantastic opportunity to develop a legal suite or custom basement to suit your needs. Located just minutes from schools, shopping, parks, and Chestermere Lake, this is a perfect place to call home. (id:37074)

Property Features

Fireplace: Fireplace Cooling: None Heating: Forced Air

Property Details

MLS® Number A2263555
Property Type Single Family
Community Name Waterford
Amenities Near By Park, Playground, Schools, Shopping
Features Gas Bbq Hookup
Parking Space Total 6
Plan 2510363
Structure Deck

Parking

Attached Garage 3

Building

Bathroom Total 4
Bedrooms Above Ground 6
Bedrooms Total 6
Appliances Refrigerator, Cooktop - Electric, Range - Gas, Dishwasher, Oven, Microwave
Basement Development Unfinished
Basement Features Separate Entrance
Basement Type Full (unfinished)
Constructed Date 2026
Construction Material Poured Concrete, Wood Frame
Construction Style Attachment Detached
Cooling Type None
Exterior Finish Composite Siding, Concrete
Fireplace Present Yes
Fireplace Total 1
Flooring Type Carpeted, Tile, Vinyl Plank
Foundation Type Poured Concrete
Heating Type Forced Air
Stories Total 2
Size Interior 2,845 Ft2
Total Finished Area 2844.51 Sqft
Type House

Rooms

Level Type Dimensions
Second Level Bonus Room 15.00 Ft x 12.67 Ft
Second Level Laundry Room 5.67 Ft x 7.83 Ft
Second Level Primary Bedroom 15.00 Ft x 14.00 Ft
Second Level Bedroom 9.75 Ft x 11.83 Ft
Second Level Bedroom 13.67 Ft x 12.00 Ft
Second Level Bedroom 12.50 Ft x 11.75 Ft
Second Level Bedroom 10.17 Ft x 10.83 Ft
Second Level 5pc Bathroom 15.50 Ft x 11.00 Ft
Second Level 3pc Bathroom 5.00 Ft x 9.25 Ft
Second Level 3pc Bathroom 5.00 Ft x 9.25 Ft
Main Level Kitchen 16.00 Ft x 9.75 Ft
Main Level Dining Room 16.00 Ft x 11.00 Ft
Main Level Other 6.00 Ft x 11.75 Ft
Main Level Bedroom 10.00 Ft x 9.83 Ft
Main Level Great Room 15.00 Ft x 14.33 Ft
Main Level Foyer 10.58 Ft x 7.42 Ft
Main Level Other 5.92 Ft x 6.00 Ft
Main Level 3pc Bathroom 9.83 Ft x 5.00 Ft

Land

Acreage No
Fence Type Partially Fenced
Land Amenities Park, Playground, Schools, Shopping
Size Depth 5.07 M
Size Frontage 18.15 M
Size Irregular 6240.37
Size Total 6240.37 Sqft|4,051 - 7,250 Sqft
Size Total Text 6240.37 Sqft|4,051 - 7,250 Sqft
Zoning Description Rc-1

When you contact Maverick Group, the best realtors in Airdrie, you will know that you are working with an agent and team who focuses on you and your needs. We will be with you every step of the way. From buying and selling to rental properties and relocation, we deliver results in the Airdrie real estate market and are ready to assist you with all of your real estate needs.

Airdrie Realtors

Real Estate Data supplied by CREA®’s MLS® System. CREA® is the owner of the copyright in its MLS® System. Data deemed reliable but not guaranteed accurate by CREA®. The trademarks MLS®, Multiple Listing Service® and the associated logos are owned by The Canadian Real Estate Association (CREA) and identify the quality of services provided by real estate professionals who are members of CREA. The trademarks REALTOR®, REALTORS®, and the REALTOR® logo are controlled by The Canadian Real Estate Association (CREA) and identify real estate professionals who are members of CREA. Used under license.

Book Your Consultation

Book Your Consultation

Book Your Consultation

Book Your Consultation

Book Your Consultation

Book Your Consultation