LOADING

2533 Sovereign Crescent Sw Calgary, Alberta T3C 3Y3

$639,900

MLS® Number: A2279495 Bedrooms: 2 Bathrooms: 3 Square Footage: 1313 sqft Community: Shaganappi
×
×
×

Need to sell your current home to buy this one?

Find out how much it will sell for today!

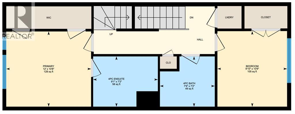
Welcome to the Alameda urban townhome at Crown Park, by Brookfield Residential. Thoughtfully designed, this brand-new residence offers over 1,300 sq. ft. of above-grade living space, plus a versatile lower-level flex room conveniently located off the attached garage. Featuring 2 bedrooms, 2.5 bathrooms, two distinct living areas, and two outdoor living spaces - including an impressive ~200 sq. ft. rooftop patio - this home is ideal for young professionals, downsizers seeking a low-maintenance lifestyle, or investors looking for a premium inner-city opportunity. The welcoming front entrance showcases a spacious patio overlooking green space, complemented by a wall of windows that allow you to enjoy the views both inside and out. The main level boasts a bright, open-concept layout designed with entertaining in mind. The gourmet kitchen is equipped with a gas cooktop, built-in appliances, chimney-style hood fan, and a central island as well as an eating bar that flows seamlessly into the dining and living areas. The central dining space overlooks the living room, while south-facing windows flood the main level with natural light throughout the day. A convenient 2-piece powder room completes this floor. The upper level is intelligently designed for privacy, with bathrooms centrally located and two generously sized bedrooms positioned at opposite ends of the home. The primary suite features double-door entry to a walk-in closet and a luxurious 4-piece ensuite with dual sinks and a tiled walk-in shower with niche. The second bedroom offers a large closet and is perfectly suited as a guest room or home office, with south-facing windows and a full 4-piece bathroom located just steps away. Upper-level laundry adds everyday convenience. Durable vinyl plank flooring continues through the upper-level hallway and stairwell leading to the rooftop patio - a thoughtful upgrade that enhances year-round access to the outdoor space. Designed for entertaining, the rooftop patio offers ample room for lounge and dining areas, is equipped with a gas line, and enjoys views over green space. Completing the home is the lower-level flex room, ideal for a media room, home gym, or office, located adjacent to the private single attached garage, which also includes a dedicated storage room. Timelessly designed with hosting in mind and ample room to grow, this townhome is located just minutes from downtown Calgary and offers multiple outdoor living areas that make it as functional as it is beautiful. With immediate access to nature trails, golf, and major transit routes, this home delivers a lifestyle that extends well beyond its walls. Backed by full builder warranty and Alberta New Home Warranty, you can purchase with complete peace of mind! (id:37074)

Property Features

Cooling: See Remarks Heating: Forced Air Landscape: Landscaped

Property Details

MLS® Number A2279495
Property Type Single Family
Neigbourhood Southwest Calgary
Community Name Shaganappi
Amenities Near By Golf Course, Park, Playground, Schools, Shopping
Community Features Golf Course Development, Pets Allowed With Restrictions
Features Back Lane, Pvc Window, No Animal Home, No Smoking Home, Gas Bbq Hookup, Parking
Parking Space Total 1

Parking

Attached Garage 1

Building

Bathroom Total 3
Bedrooms Above Ground 2
Bedrooms Total 2
Appliances Washer, Refrigerator, Cooktop - Gas, Dishwasher, Dryer, Microwave, Oven - Built-in, Hood Fan
Basement Development Finished
Basement Type Partial (finished)
Constructed Date 2025
Construction Material Wood Frame
Construction Style Attachment Attached
Cooling Type See Remarks
Flooring Type Carpeted, Tile, Vinyl
Foundation Type Poured Concrete
Half Bath Total 1
Heating Type Forced Air
Stories Total 2
Size Interior 1,313 Ft2
Total Finished Area 1313 Sqft
Type Row / Townhouse

Rooms

Level Type Dimensions
Basement Recreational, Games Room 14.25 Ft x 14.92 Ft
Main Level Living Room 14.25 Ft x 15.17 Ft
Main Level Dining Room 10.92 Ft x 8.25 Ft
Main Level Kitchen 13.92 Ft x 16.75 Ft
Main Level 2pc Bathroom 3.25 Ft x 5.75 Ft
Upper Level Primary Bedroom 10.67 Ft x 12.00 Ft
Upper Level 4pc Bathroom 7.17 Ft x 9.08 Ft
Upper Level Bedroom 10.75 Ft x 9.83 Ft
Upper Level 4pc Bathroom 7.17 Ft x 7.75 Ft
Upper Level Laundry Room Measurements not available

Land

Acreage No
Fence Type Not Fenced
Land Amenities Golf Course, Park, Playground, Schools, Shopping
Landscape Features Landscaped
Size Total Text Unknown
Zoning Description Dc

When you contact Maverick Group, the best realtors in Airdrie, you will know that you are working with an agent and team who focuses on you and your needs. We will be with you every step of the way. From buying and selling to rental properties and relocation, we deliver results in the Airdrie real estate market and are ready to assist you with all of your real estate needs.

Airdrie Realtors

Real Estate Data supplied by CREA®’s MLS® System. CREA® is the owner of the copyright in its MLS® System. Data deemed reliable but not guaranteed accurate by CREA®. The trademarks MLS®, Multiple Listing Service® and the associated logos are owned by The Canadian Real Estate Association (CREA) and identify the quality of services provided by real estate professionals who are members of CREA. The trademarks REALTOR®, REALTORS®, and the REALTOR® logo are controlled by The Canadian Real Estate Association (CREA) and identify real estate professionals who are members of CREA. Used under license.

Book Your Consultation

Book Your Consultation

Book Your Consultation

Book Your Consultation

Book Your Consultation

Book Your Consultation