LOADING

2105a 7 Street Ne Calgary, Alberta T2E 4C7

$1,150,000

MLS® Number: A2272545 Bedrooms: 3 Bathrooms: 1 Square Footage: 1947 sqft Community: Winston Heights/Mountview
×
×
×

Need to sell your current home to buy this one?

Find out how much it will sell for today!

Discover this stunning UNDER-CONSTRUCTION NEW SEMI-DETACHED INFILL featuring a west-facing backyard and an unbeatable location within walking distance to The Winston Golf Club. Step inside and you’re immediately welcomed by an open and airy main floor with soaring 10 ft ceilings, 8 ft doors and hardwood flooring throughout the main and upper levels—a space that instantly feels like home. The bright, spacious dining area with large windows sets the perfect stage for hosting dinner parties or enjoying relaxed family meals. The chef-inspired kitchen is a true showpiece, featuring high-end stainless steel appliances, including a gas cooktop and built-in oven/microwave combo, a massive quartz island with breakfast bar, and sleek full-height custom cabinetry for ample storage. The walk-through pantry with built-in shelving and direct access to the rear mudroom adds everyday convenience. At the back, the inviting living room centres around a cozy fireplace and large 10 ft wide sliding door that open to the west backyard, filling the home with natural light. A stylish designer powder room completes the main level. Upstairs, you’ll find three spacious bedrooms, each thoughtfully designed for comfort. The primary suite is a luxurious retreat, featuring a spa-inspired ensuite with a heated floor, soaking tub, glass-enclosed shower, dual sinks, and a walk-in closet that offers generous storage. Two additional bedrooms, a modern 4-piece bath, a tiled laundry room with sink, and a versatile bonus space—ideal as an office, reading nook, or play area—complete the upper level. The fully developed LEGAL 2-BEDROOM SUITE (subject to permits & approval by the city) on the lower level offers flexibility for a live-in nanny, extended family, or rental income. With a private side entrance, this suite includes a well-appointed kitchen with full-height cabinetry and quartz countertops, stainless steel appliances, a spacious living area, modern 4-piece bath, separate laundry, and two generous bedrooms. Outside, enjoy your private backyard oasis with a wooden deck and full fencing, perfect for relaxation or entertaining. The double detached garage provides ample room for vehicles, tools, and storage. Located in the vibrant community of Winston Heights, you’ll love the friendly atmosphere and nearby amenities—top-rated schools, grocery stores, recreation and aquatic centre, golf course, soccer fields, tennis courts, and off-leash dog parks. Scenic walking and cycling pathways are just steps away, while shopping, dining, and downtown Calgary are only a short drive with easy access to 16 Ave and Deerfoot Trail. Both sides are available. (id:37074)

Property Features

Fireplace: Fireplace Cooling: See Remarks Heating: Forced Air Landscape: Landscaped

Property Details

MLS® Number A2272545
Property Type Single Family
Neigbourhood Winston Heights-Mountview
Community Name Winston Heights/Mountview
Amenities Near By Golf Course, Playground, Recreation Nearby, Schools, Shopping
Community Features Golf Course Development
Features Back Lane, Gas Bbq Hookup
Parking Space Total 2
Plan Tbv
Structure Deck

Parking

Detached Garage 2

Building

Bathroom Total 1
Bedrooms Above Ground 3
Bedrooms Total 3
Appliances Refrigerator, Cooktop - Gas, Range - Electric, Dishwasher, Oven - Built-in, Hood Fan, Washer/dryer Stack-up
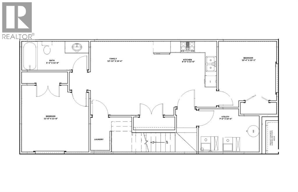
Basement Development Finished
Basement Features Separate Entrance, Suite
Basement Type Full (finished)
Constructed Date 2026
Construction Material Wood Frame
Construction Style Attachment Semi-detached
Cooling Type See Remarks
Exterior Finish Stucco
Fire Protection Smoke Detectors
Fireplace Present Yes
Fireplace Total 1
Flooring Type Ceramic Tile, Hardwood, Vinyl Plank
Foundation Type Poured Concrete
Heating Fuel Natural Gas
Heating Type Forced Air
Stories Total 2
Size Interior 1,947 Ft2
Total Finished Area 1947 Sqft
Type Duplex

Rooms

Level Type Dimensions
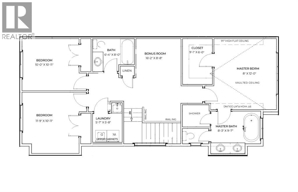
Second Level Primary Bedroom 12.67 Ft x 12.00 Ft
Second Level Bedroom 11.75 Ft x 10.92 Ft
Second Level Bedroom 10.00 Ft x 10.92 Ft
Second Level Bonus Room 16.17 Ft x 8.67 Ft
Second Level 5pc Bathroom 8.25 Ft x 9.58 Ft
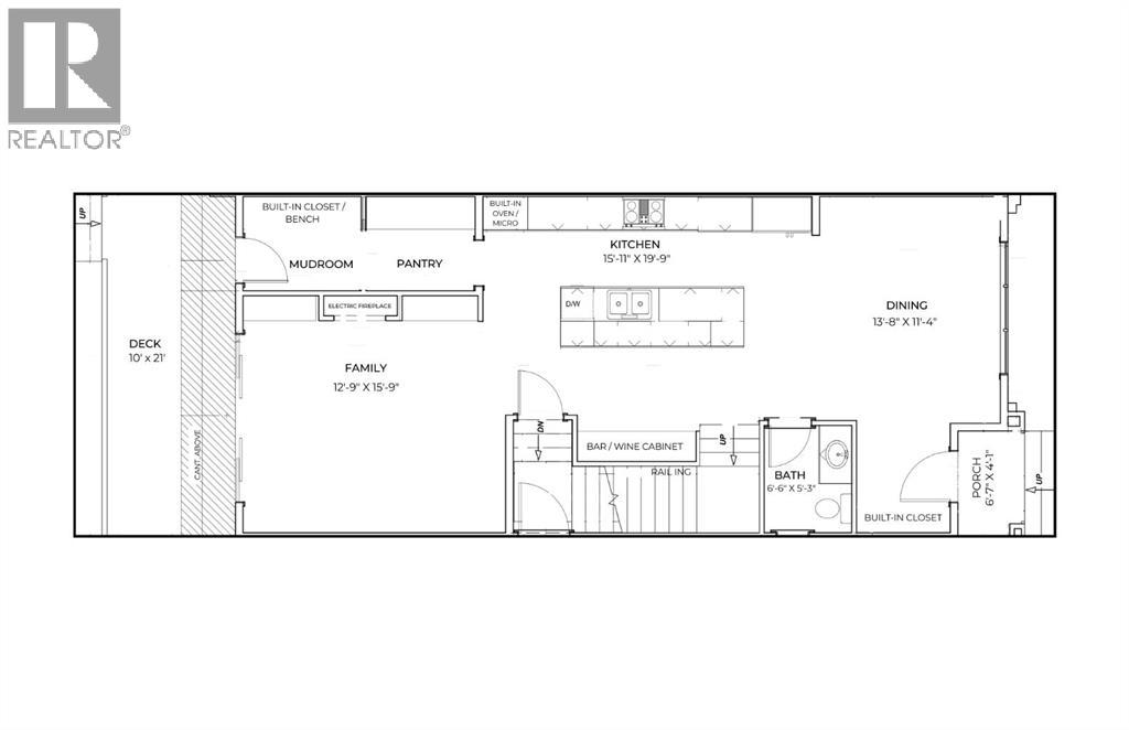
Main Level Family Room 12.75 Ft x 15.75 Ft
Main Level Kitchen 15.92 Ft x 19.75 Ft
Main Level Dining Room 13.67 Ft x 11.33 Ft

Land

Acreage No
Fence Type Fence
Land Amenities Golf Course, Playground, Recreation Nearby, Schools, Shopping
Landscape Features Landscaped
Size Depth 36.57 M
Size Frontage 7.62 M
Size Irregular 3000.00
Size Total 3000 Sqft|0-4,050 Sqft
Size Total Text 3000 Sqft|0-4,050 Sqft
Zoning Description R-cg

When you contact Maverick Group, the best realtors in Airdrie, you will know that you are working with an agent and team who focuses on you and your needs. We will be with you every step of the way. From buying and selling to rental properties and relocation, we deliver results in the Airdrie real estate market and are ready to assist you with all of your real estate needs.

Airdrie Realtors

Real Estate Data supplied by CREA®’s MLS® System. CREA® is the owner of the copyright in its MLS® System. Data deemed reliable but not guaranteed accurate by CREA®. The trademarks MLS®, Multiple Listing Service® and the associated logos are owned by The Canadian Real Estate Association (CREA) and identify the quality of services provided by real estate professionals who are members of CREA. The trademarks REALTOR®, REALTORS®, and the REALTOR® logo are controlled by The Canadian Real Estate Association (CREA) and identify real estate professionals who are members of CREA. Used under license.

Book Your Consultation

Book Your Consultation

Book Your Consultation

Book Your Consultation

Book Your Consultation

Book Your Consultation