LOADING

13 Creekview Manor Sw Calgary, Alberta T2X 5Y4

$609,900

MLS® Number: A2269434 Bedrooms: 4 Bathrooms: 4 Square Footage: 1585 sqft Community: Pine Creek
×
×
×

Need to sell your current home to buy this one?

Find out how much it will sell for today!

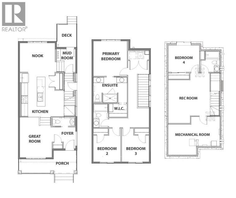
Welcome to the Strathcona by Cedarglen Homes - a home designed for those who crave connection, comfort, & a touch of everyday luxury. Nestled in Creekview, Calgary’s newest southwest community surrounded by natural beauty and modern convenience, this brand new 4 bedroom home delivers the perfect balance of function and sophistication. Step through the inviting covered front veranda, and you’re greeted by a warm, open-concept main floor that invites gathering. The great room at the front of the home sets the tone - bright, welcoming, and effortlessly stylish with soaring ceilings. At the heart of the home, the kitchen brings everyone together with its light cabinetry, quartz countertops, and striking black hardware. A large central island makes it easy to entertain while staying connected to the dining nook overlooking the backyard deck - perfect for summer barbecues and cozy weekend mornings. Everyday living feels effortless thanks to thoughtful details like the mudroom with built-in storage, the tucked away powder room, and the natural flow between kitchen, dining, and living spaces. Upstairs, the primary suite is your retreat - spacious, serene, & complete with a walk-in closet and spa-inspired ensuite featuring a fully tiled shower and dual sinks. Two additional bedrooms, a bright main bath, and a convenient flex area (great for a play space or desk) make this level as practical as it is peaceful. The finished basement adds incredible flexibility, offering a separate entrance, fourth bedroom, full bathroom and a versatile rec room - the perfect setup for guests, teens, or future suite potential (subject to city permits and approval). Modern finishes run throughout, from warm-toned vinyl plank flooring to the subway tile backsplash and stunning light fixtures creating a cohesive look that feels fresh and timeless. Outside, a finished deck with a gas line invites you to enjoy the sunshine and fresh air, while the stone façade on the front of the home adds instant c urb appeal. With Cedarglen’s trusted craftsmanship, this home is a rare opportunity to own in one of Calgary’s most exciting new communities - where style meets simplicity and every detail is designed for real life. Live beautifully in Creekview. Just minutes from Macleod and Stoney Trail, this community offers effortless access to downtown, major shopping like Township Centre, and the surrounding communities of Silverado and Legacy for schools, dining, and recreation. Schedule your private showing today and discover why the Strathcona is more than a home - it’s your next chapter. (id:37074)

Property Features

Cooling: None

Property Details

MLS® Number A2269434
Property Type Single Family
Neigbourhood Southwest Calgary
Community Name Pine Creek
Amenities Near By Park, Playground
Features Back Lane, No Animal Home, No Smoking Home, Gas Bbq Hookup
Parking Space Total 2
Plan 2411541
Structure Deck

Parking

Other
Parking Pad

Building

Bathroom Total 4
Bedrooms Above Ground 3
Bedrooms Below Ground 1
Bedrooms Total 4
Appliances Dishwasher, Microwave, Hood Fan
Basement Development Finished
Basement Features Separate Entrance
Basement Type Full (finished)
Constructed Date 2025
Construction Style Attachment Detached
Cooling Type None
Exterior Finish Stone, Vinyl Siding
Flooring Type Carpeted, Tile, Vinyl Plank
Foundation Type Poured Concrete
Half Bath Total 1
Stories Total 2
Size Interior 1,585 Ft2
Total Finished Area 1585.2 Sqft
Type House

Rooms

Level Type Dimensions
Basement Family Room 14.08 Ft x 14.42 Ft
Basement Bedroom 9.25 Ft x 10.50 Ft
Basement 4pc Bathroom .00 Ft x .00 Ft
Main Level Other 11.25 Ft x 15.08 Ft
Main Level Dining Room 9.92 Ft x 11.92 Ft
Main Level Other 6.42 Ft x 7.92 Ft
Main Level 2pc Bathroom .00 Ft x .00 Ft
Main Level Living Room 10.92 Ft x 13.67 Ft
Upper Level Primary Bedroom 11.42 Ft x 12.00 Ft
Upper Level 4pc Bathroom .00 Ft x .00 Ft
Upper Level Bedroom 11.42 Ft x 9.25 Ft
Upper Level Bedroom 11.33 Ft x 9.25 Ft
Upper Level 4pc Bathroom .00 Ft x .00 Ft

Land

Acreage No
Fence Type Not Fenced
Land Amenities Park, Playground
Size Frontage 7.75 M
Size Irregular 260.00
Size Total 260 M2|0-4,050 Sqft
Size Total Text 260 M2|0-4,050 Sqft
Zoning Description R-g

When you contact Maverick Group, the best realtors in Airdrie, you will know that you are working with an agent and team who focuses on you and your needs. We will be with you every step of the way. From buying and selling to rental properties and relocation, we deliver results in the Airdrie real estate market and are ready to assist you with all of your real estate needs.

Airdrie Realtors

Real Estate Data supplied by CREA®’s MLS® System. CREA® is the owner of the copyright in its MLS® System. Data deemed reliable but not guaranteed accurate by CREA®. The trademarks MLS®, Multiple Listing Service® and the associated logos are owned by The Canadian Real Estate Association (CREA) and identify the quality of services provided by real estate professionals who are members of CREA. The trademarks REALTOR®, REALTORS®, and the REALTOR® logo are controlled by The Canadian Real Estate Association (CREA) and identify real estate professionals who are members of CREA. Used under license.

Book Your Consultation

Book Your Consultation

Book Your Consultation

Book Your Consultation

Book Your Consultation

Book Your Consultation